Meninger / Debatt
Nå skal arkitekturstrategien omsettes til handling
Av Tor Inge Hjemdal
Hovedinntrykket av Clemenskvartalet blir at boligkvaliteter som skal ivaretas i planløsningene gis mindre vekt enn kvartalsmønstre, bygningsvolumer, fasader og uteområder, skriver Marius Nygaard, sivilarkitekt MNAL.
Clemenskvartalet sett fra øst, dvs. fra Middelalderparken og Ekeberg. Bygg 7, 6 og 5 er bygd over samme lest. De har hver sin trapp og heis, og atkomst til leilighetene fra svalganger.
Foto: Helene H. Rossholt/Avisa Oslo«Ja, de er fint satt sammen!». Kvinnen til høyre i gruppen på tre hadde stoppet noen meter foran meg i nordpassasjen inn til gårdsrommet i Clemenskvartalet i Bjørvika i Oslo. Hun pekte innover mot de oppstikkende fasadene i ulike fargenyanser som markerer det sydøstre hjørnet i kvartalet. Den spontane kommentaren bekreftet oppfatningen, både blant venninnene og i en serie av positive omtaler i aviser og fagpresse.
Fotograf Damian Heinisch har fanget inn stedet der vi sto. Åpningen er høy og bred for at brannbiler skal kunne komme inn. Det gjør passasjen lysere og mindre trekkfull. Samtidig er den lav og smal nok til å understøtte det viktige skiftet i tempo og stemning mellom de ytre bystrøkene og det indre, bolignære livet i gårdsrommet. Det trengs ikke porter og låser. Arkitekturen (Mad arkitekter AS) og landskapsarkitekturen (Grindaker AS) gjør jobben.
I Clemenskvartalet er det i tillegg etablert felles takterrasser. To av dem ligger på de lavere, hvite bygningene som flankerer det oppstikkende hjørnet midt i bildet. Variasjonen i høyder øker innfallet av sol og utsynet til himmelen. Beboerne kan velge uteopphold på steder som har stort spenn i karakter og i grader av privathet. Fra hele kvartalets gårdsrom via oppgangenes felles takterrasser til boligenes egne balkonger.
Et skille mellom bystrøk og boligkvartal er også lagt inn i bebyggelsen. De to nederste etasjene er avsatt til utleiearealer for næringsvirksomhet, mens boligene ligger over. I eldre bydeler er dette et kjent trekk som gir liv til gatene. I Bjørvika må det nytolkes i lys av dagens krav og forventninger til boliger og virksomheter.
Som de fleste fleretasjers nybygg i Norge (2026) har hele Clemenskvartalet en felles hovedkonstruksjon som består av et skjelett av tynne søyler og bjelker i stål. Det bærer etasjeskillere (dekker) i betong. Sammen med avstivende vegger, også i betong, hindrer dekkene bygget i å vri seg eller velte.
Bildet fra byggeperioden viser utsiden av det sydøstre hjørnet i kvartalet. De lyse boksene er prefabrikerte baderom som er løftet på plass. I bildet av de ferdige hjørnebyggene er de påhengte fasadene montert. Vi kjenner igjen de lavere, hvite byggene på hver side.
I et intervju med Arkitektur.no om Clemenskvartalet 25.august 2023, sier Jonny Klokk i Mad arkitekter at «her er de ulike uttrykkene knyttet opp mot ulike trappehus, så det er reelt forskjellige bygg som står ved siden av hverandre».
Dette stemmer bare delvis. På kopien av bildet mot gårdsrommet har jeg markert veien inn til en leilighet i 4.etasje i den lave, hvite blokken til høyre.
Beboerne må gå inn i hjørnebygget til venstre. Der ligger trappen og heisen som leder opp til 4. etasje. Herfra må de må gå ut på en svalgang langs hele den teglkledde naboblokken for å komme inn i leiligheten i det lave, hvite, bygget.
Til venstre: Sikt inn i gårdsrommet i Clemenskvartalet. Fra den nordre passasjen i den omsluttende bebyggelsen. Til høyre: Tre bygg i det sydøstre hjørnet av kvartalet fremstår som selvstendige boligblokker, men har felles hovedinngang og trapp/heis. Atkomst til leilighet i 4. etasje i det lave, hvite “bygget” til høyre er markert med stiplet linje. Illustrasjon: Marius Nygaard.
Foto: Damian Heinisch/Grindaker AS Landskapsarkitekter
Over: Bilde av Clemenskvartalet under bygging (april 2022). Hovedkonstruksjonene i stål og betong er synlige, sammen med prefabrikerte baderom (lyse bokser). Under: Clemenskvartalet ferdig bygd (august 2023). Påhengte fasader med varierende arkitektoniske uttrykk.
Illustrasjon: Skjermbilder fra Google Street ViewMen østsiden av Clemenskvartalet, langs Kong Håkon 5.s gate, er strukturert slik Mad arkitekter sier. Mellom hjørnebyggene i nord og syd ligger tre bygninger som har hver sin trapp og heis, og hver sin farge og arkitektoniske uttrykk.
I den arkitekturfaglige redegjørelsen ved søknad om rammetillatelse skriver Mad arkitekter at «Oslo er historisk sett en by med farger og former, og vi ønsker at den nye byen i byen, Bjørvika, også skal gjenspeile dette fargemessig. Dette understreker vi videre med noen innslag av arker/buer i noen bygningselementer».
Helene H. Rossholt/Avisa Oslos foto øverst i saken viser at disse intensjonene er fulgt opp i det ferdige prosjektet. Hovedstrukturen er klart lesbar. Fasadene blir del av en sammenhengende, men mangeartet vegg i overgangen mellom den tette bebyggelsen i Bjørvika og det bevarte, åpne landskapet i Middelalderparken.
Bildet og oversiktskartet viser samtidig østfasadens hovedproblem. Den har en unik og fri utsikt mot Middelalderparken og Ekeberg. Samtidig er fasaden sterkt støybelastet fra en firefelts, lysregulert hovedinnfartsvei.
Mad arkitekters redegjørelse har fokus på volumoppbygging, fargebruk, materialer og detaljer. Valget av planløsningsprinsipp i boligblokkene er knapt nok diskutert.
Clemenskvartalets beliggenhet i Bjørvika. lllustrasjon: Marius Nygaard
Foto: Norgeskart.noPå vei inn til hver enkelt bolig er det, på samme måte som for uteområdene, naturlig å ha en stegvis overgang, både klimatisk og i grad av privathet. Fra det ytre og offentlige til det indre, beskyttede og tilbaketrukne.
De tre midtre blokkene har lett synlige hovedinnganger fra det indre gårdsrommet. Derfra fører en korridor inn til trapp og heis. Siden de to nederste etasjene inneholder næringslokaler, får en først kontakt med dagslys i 3. etasje. Én av de fire leilighetene i hver boligetasje har inngangsdør vis-à-vis trappen og heisen.
De andre beboerne må ut på en åpen svalgang mot Kong Håkon 5.s gate. Plutselig er de eksponert for utetemperatur, vind og trafikkstøy. For å komme til de to leilighetene i hver sin ende av svalgangen må en passere tett på vinduet til naboens hovedsoverom.
Dette vises på en typisk planløsning fra bygg 7. Den er hentet fra rammesøknaden som ligger på Plan- og bygningsetatens (PBE) planinnsyn i Oslo. De utstikkende «søylene» i fasaden mot Middelalderparken motvirker monotonien i svalgangene og planløsningene, men gir samtidig mindre utsyn og dagslys.
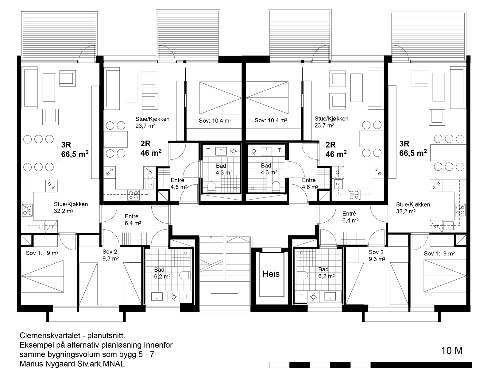
Som hovedtype dreier det seg om en «firespenner» (dvs. 4 leligheter pr. etasje). Etasjedybden (fra innside til innside av fasader) er ca. 12 meter, og bredden i hvert av byggene ca. 22 m. (Gjennomsnitt for de tre svalgangsbyggene). Det finnes flere mulige løsninger innenfor disse rammene. Som utgangspunkt for diskusjon vises en alternativ etasjeplan.
Her er svalgangen fjernet, og hovedtrappen er flyttet til fasaden mot Middelalderparken. Da blir utsikten, med variasjoner i solinnfall, dagslys og årstider en viktigere del av veien ut og hjem igjen. Leilighetene er mer arealeffektive og mer fleksibelt møblerbare.
En typisk 3-roms leilighet har bruksareal på ca. 66 m2, med stue / kjøkkenareal på 32 m2. Det er plass til to senger i begge soverom. Det er 60 cm bred passasje langs fotenden av dobbeltsenger, også i 2-roms leilighetene. Et lite, men viktig skritt tilbake mot en bedre boligfremtid. De bygde 3-roms leilighetene har til sammenligning bruksareal i området 48 – 63 m2, med gjennomsnittlig stue / kjøkkenareal på ca. 22 m2.
Plantegning.
Illustrasjon: Mad arkitekter
Plantegning.
Illustrasjon: Marius NygaardSpørsmålet blir hvorfor disse mulighetene ikke er utnyttet. Mye tyder på at hensynet til sammenhengende og tilpasningsdyktige utleiearealer i de to nederste etasjene har vært viktig. For å få en kontinuerlig, indre passasje langs fasaden mot Kong Håkon 5.s gate, må trapp og heis flyttes innover i bygget.
Neste spørsmål blir i så fall hvorfor en godtar dårlige kompromisser for boligene i stedet for å søke en bedre balanse mellom hensynene til ulike funksjoner.
En annen gåte er hvorfor svalganger er brukt på størstedelen av den støyutsatte østfasaden. Reguleringsplanen krever at minst 50% av oppholdsrommene skal vende mot gårdsrommet («stille side»). Det betyr at i 3 roms leiligheter i de tre midtbyggene (5,6, og 7) må minst ett soverom vende mot gårdsrommet. Men dette problemet er løst i hjørnebyggene i nord og syd. Der har flere oppholdsrom vinduer mot innglasset balkong eller karnapp langs Kong Håkon 5.s gate. I rammetillatelsen vises det til lydkonsulenter som går god for at støynivået da vil tilsvare «stille side» som mot gårdsrommet.
I den alternative etasjeplanen har alle soverom mot Kong Håkon 5.s gate slik skjerming. Resultatet ville da vært at alle oppholdsrom, inklusive soverom, i de tre midtbyggene hadde støyskjerming tilsvarende «stille side», I det bygde prosjektet gjelder dette alle stuer/kjøkken, men bare 1/3 av soverommene.
Hovedinntrykket blir at boligkvaliteter som skal ivaretas i planløsningene gis mindre vekt enn kvartalsmønstre, bygningsvolumer, fasader og uteområder. Dette gjelder også for Plan- og bygningsetatens kommentarer i rammetillatelsen.
I Clemenskvartalet lå opprinnelig salgspris pr. m2 (høst 2020) i størrelsesorden 110-120.000 kr. (Estate nyheter). Nå sies den å ligge på over 150.000 kr. pr. m2 (Finansavisen 2025). En 3-roms leilighet bør kunne fungere godt som varig bolig for familier med 3-4 medlemmer. Hvis en boligkarriere må deles opp i mange, korte og uforutsigbare trinn, blir planlegging vanskelig. Hyppige flyttinger kan bli dyrt på grunn av honorarer, avgifter, finansieringskostnader og nødvendige tilpasninger av neste bolig.
Planløsningene er derfor en viktig del både av boligpolitikken og arkitekturdebatten. Det kan virke urimelig å kritisere et prosjekt der Oslo S Utvikling og Mad arkitekter har fått til så mye. Samtidig er det her vi må starte for å komme videre. Det er på tide å invitere arkitekturkritikken inn i leilighetene.
Meninger / Debatt
Av Tor Inge Hjemdal
Meninger / Debatt
Av Adnan Harambasic
Meninger / Debatt
Av Per Knudsen, Ole Wiig, Tom Forsberg og Bjørn Cappelen
Meninger / Debatt
Av Rune Fortun og Herman Ekle Lund
Meninger / Debatt
Av Nuno Almeida, Kjersti Bjerke, Elisabeth Sjødahl og Violaine Mussault
Meninger / Debatt
Av Even Bakken