Utviklingen av turistvegprosjektet Gjende har en lang og broket historie hos oss. Den første befaringen var allerede tidlig på høsten 2003. Politiske og juridiske utfordringer, i tillegg til endringer i programmet, har ført til en kompleks og mangslungen tilblivelsesprosess.
Den viktigste innfallsporten til Jotunheimen nasjonalpark er nettopp Gjende, og stedet danner utgangspunktet for en av Norges mest berømte fjellturer, Besseggen, også kjent i Peer Gynt som Gjendineggen. Som mange andre turistdestinasjoner har utviklingen fra sped begynnelse til moderne masseturisme skjedd gradvis og uten samlet planlegging.
Da vi tok fatt på oppgaven i 2003, var området ved utløpet av Gjende preget av store mengder parkerte biler, trafikalt kaos og dårlig sørvistilbud. Denne situasjonen har blitt ytterligere tilspisset i årene etterpå, med nesten dobling av antallet besøkende i løpet av en kort og hektisk sommersesong.
Prosjektet er sammensatt av to hoveddeler: terminalbygg og brygge ved Gjendeosen og et stort parkeringsanlegg på Reinsvangen en drøy kilometer østover. Brygge med sørvisbygg, en stor landskapsreparasjon og utvidelsen av Reinsvangen med tilhørende sørvisbygg ble ferdigstilt i byggetrinn 1, mens terminalbygget vil stå ferdig i september i år. Forhåpentligvis vil de siste utomhusarbeidene ved Gjendeosen ferdigstilles neste år.
I tillegg til generell opprydning og oppgradering av sørvistilbudet, har bedring av trafikksikkerheten, reduksjon av biltrafikken og en tydeligere markering av skillet mellom nasjonalparken og de trafikale områdene vært vesentlige momenter.
Trafikkbildet på Gjendeosen er uvanlig komplekst, det er kollektivknutepunkt for Gjendebåtene og busser, fergeleie for kufrakt over Sjoa, utsettingssted for småbåter, vareleveringsted for alle forsyninger til Memurubu og Gjendebu, personbiltrafikk og en anselig mengde fotgjengere. Det aller viktigste for oppryddingen ved Gjendeosen er at 250-300 parkeringsplasser er flyttet til Reinsvangen.
Reinsvangen servicebygg
Reinsvangen servicebygg
- Knut Hjeltnes sivilarkitekter MNAL AS
- Statens vegvesen, Nasjonale turistveier
- 2019
- Audun Andresen, cand. polyt. arch. (prosjektansvarlig)
- Mats Resch, arkitekt MNAL
- Frøydis Kolseth, arkitekt MNAL
- LARK: Cowi AS
- RIB1: Finn-Erik Nilsen
- RIB2: Dr. techn. Kristoffer Apeland AS
- RIBFYS: Norconsult AS
- RIE: Norconsult AS
- RIV1: Multiconsult AS
- RIV2: Structor Lillehammer AS
- Utomhusarbeider: Uavklart.
- Terminalbygg: Planlagt 2023.
- Brygge og bryggehus: 2019
- Utomhus: 14.000 kvm.
- Terminalbygg overdekt: 415 kvm.
- Terminalbygg brutto: 340 kvm.
- Brygge: 660 kvm.
- Bryggehus overdekt: 160 kvm.
- Bryggehus brutto: 60 kvm

Brygge og bryggehus sett fra nordvest.
Foto: Nanna WoldenGjendeosen
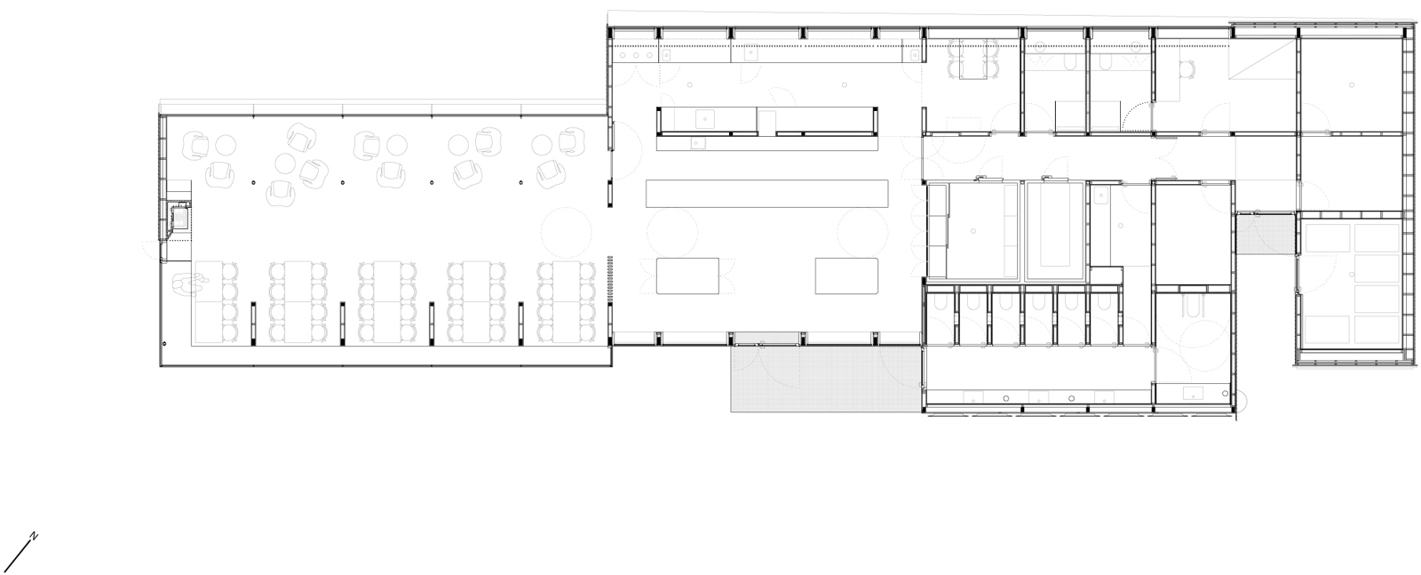
Terminalbygget ligger lavmælt, men tverrstilt i situasjonen, og markerer med det en tydelig grense for hvor nasjonalparken begynner. Ytterst mot vannet ligger cafédelen, med utsikt utover Gjende og opp mot Besseggen. Kiosk, inngangsparti og toalettanlegg ligger sentralt, mens ikke-publikumsrettede funksjoner ligger lengst inn. All informasjon er samlet på byggets sørside, i ly under et sjenerøst utkraget tak.
Brygga gir plass for de to Gjendebåtene med tilhørende sørvisbygg. Mot publikum er det et romslig overdekt område som både gir værbeskyttelse for de reisende, men som også gir et tørt sted for sekkelagring, da sekketransport er en del av tilbudet til Besseggenvandrerne. Sørsiden av bygget er i sin helhet viet sørvisfunksjoner for båtene; avfallshåndtering, kjølerom, drivstofflager, båtutstyrslager, mm.
Mellom brygga og Gjendesheim er det fortsatt en liten gruslagt p-plass og en rampe for båtutsetting og kuferge. Det er også etablert en enkel sti til Gjendesheim.
Situasjonen er uvanlig da ingen av husene har baksider, ei heller taket, som ved Gjendeosen er særlig viktig da dette er det første man ser på vei ned fra Besseggen. Vi har jaktet på et lavmælt uttrykk hvor takflaten trekkes mykt helt ned til bakken, der det ikke er åpnet for utsyn, innganger, informasjon eller andre spesifikke behov.
Alle tre byggene er skapt over samme lest, langsmale volumer med et irregulært aksesystem. Hovedkonstruksjonene er i hhv limtre (bryggebygg og sørvisbygg Reinsvangen) eller sammensatt av fagverk og tresjiktsplater (terminalbygget). Taket er i de uisolerte byggene skrudd massivtre, mens det i terminalbygget er konvensjonelt åstak. Vegger og tak danner en sammenhengende flate og er kledd med ubehandlet skråpanel av malmfuru. Terminalbygget har slipt betonggulv, konstruksjoner i stål og gran, mens ifyllende vegger er i furu-kryssfinér. Himlingene i kiosk og café har strikkemønstret akustisk ullhimling.

Plantegning.
Foto: Knut Hjeltnes Sivilarkitekter
Kortsnitt igjennom café og butikk.
Foto: Knut Hjeltnes Sivilarkitekter
Kortsnitt igjennom café og butikk.
Foto: Knut Hjeltnes Sivilarkitekter