Aktuelt / Arkitektur
– Kanskje har vi mistet evnen til å tegne bolig
Hvem er det som har fått folk til å tro på at de trenger et laboratoriumaktig kjøkken til 500 000, spør Fredrik Lund. Arkitekten håper hans nye bok med papirprosjekter kanskje kan bli en slags ferdighuskatalog.

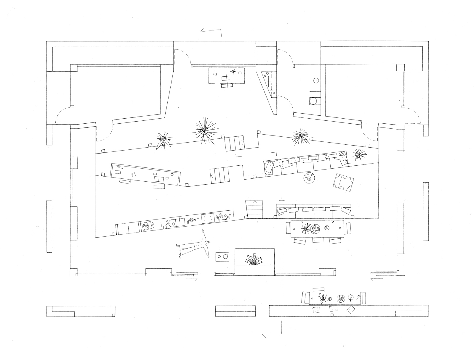
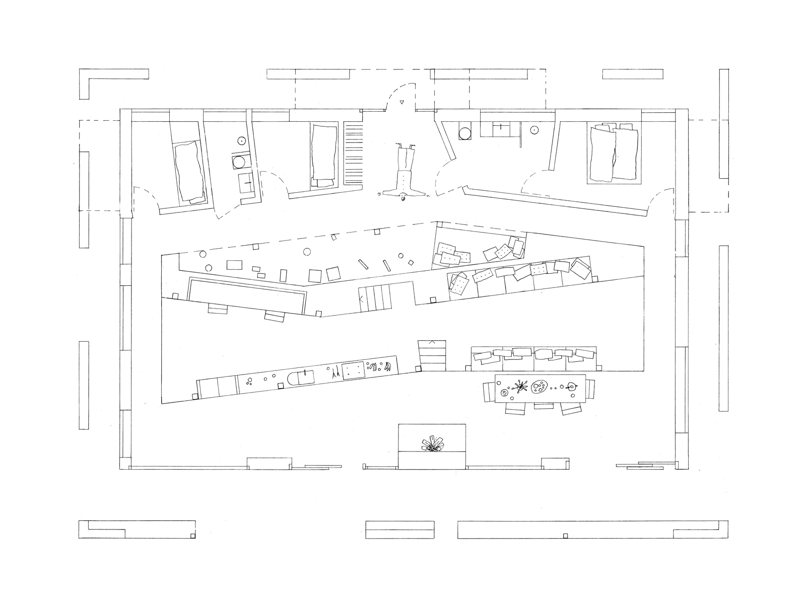
«House of terraces», fra Fredrik Lunds nye bok med 42 papirprosjekter.
Illustrasjon: Fredrik LundEn vakker, kartongfarget bok, sendt rett fra trykk i Polen, ligger foran oss på bordet. Den litt nonsjalante tittelen «Some houses» er inngangsporten til skisser og 42 plantegninger av hus fulle av små dyr og levende mennesker.
Vi ringer mannen bak boken – Fredrik Lund, professor i arkitektur ved NTNU. Han har allerede sendt mail til redaksjonen om at han er «i veldig godt humør» på grunn av den nye boken.
– Dette er litt lærebok, men mest av alt en inspirasjonsbok. Det er en bok som skal gjøre folk «happy» for arkitekturen og få lyst til å tegne og skape gode hus, sier Lund til Arkitektur.
Sammenflettet med naturen
For å skape entusiasme for denne tegnende delen av arkitektyrket, bruker Lund først og fremst kreativiteten. Med en Mayline tracer, kjøpt i 1986, trykkblyant og viskelær, og Keith Jarretts improviserte pianokonserter på øret har han skisset frem 42 ulike boliger – som svarer ut ulike behov.
– Jeg vil vise at vi kan tegne fine hus med enkle midler og ved å våge å slippe til den kreative kraften. De 42 husene er byggbare, jordnære og konstruktivt fundert, men samtidig ligger det ideer bak hver hus som ikke er helt A4.
– Hva er det som ikke er helt A4?
– Helt siden jeg var student har jeg tenkt at hvordan vi bygger hus, sier veldig mye om vårt forhold til naturen. Nordmenn er så opptatt av utsikt og ender nesten opp med å ødelegge landet med hvordan vi plasserer husene våre. Jeg har heller lært av min spanske arkitektkone å heller tenke hvordan husene står til sine aller nærmeste omgivelser. Denne sammenflettingen med naturen, er sentralt i boken.

Fredrik Lund er professor i arkitektur ved NTNU. Nå er han aktuell med boken «Some houses» – 28 etter sist utgivelse.
Foto: privatIkke inne, ikke ute
I Spania har han sett hvordan hus og rom står til enkelte trær, busker eller steiner i omgivelsene. I boken finnes det rom som befinner seg i rommet mellom ute og inne. Han tar hagen inn i huset, som i japansk arkitektur, eller motsatt, flytter innendørselementer ut av huset.
– Målet er å skape rom hvor man ikke vet om man er ute eller inne. Jeg tegner ulike romlige situasjoner hvor det ikke blir så viktig om du er utenfor eller inni huset. Da når vi det høyeste nivået i arkitektur.
– Hvorfor er dette en viktig del av arkitekturen?
– Man kan tenke seg at ved å legge til rette for utsikt til et bestemt tre, stein eller grusflate, så skjer det noe med oss. Dette handler både om følelsen av det romlige og hvordan vi oppfatter å være i huset. Man forholder livet sitt til to stener, et tre eller en vegg med klatreplanter som man ser på. Det blir som en litt introvert verden, som man forholder livet sitt til – heller enn å være opptatt av den utsikten langt der borte.
Å få til et uterom som visker ut skillet mellom inne og ute, er spesielt viktig i Norge, mener Lund. Den spanske København-bosatte arkitekt Nathan Romero Muelas, skriver i «Some houses»-boken at man kan påstå at denne type ute-inne-rom er bedre i land som Spania og Brasil enn Norge.
– Jeg synes ikke den påstanden er sann. Jeg tenker at nettopp i vårt klima, med så mye regn, vind, snø og nedbør, er det behov for denne type rom. Uterommene skal da helst ha to eller tre vegger og tak, samt åpninger til rommene innenfor. Dette er noe vi har glemt når vi tegner hus i Norge.

House of terraces.
Illustrasjon: Fredrik Lund
House of terraces.
Illustrasjon: Fredrik Lund
House of terraces.
Illustrasjon: Fredrik LundFinne husets ro
Lund har flere utgangspunkt for boken. Den er også et slags tilsvar til det han kaller «rastløshet i arkitekturen». Med rastløs arkitektur mener han at han i altfor mange nye hus, ikke ser plasser hvor man som menneske kan falle til ro.
– Det er uklare planer, uklare rom og ingen steder med ro. Jeg så et sveitsisk prosjekt for noen år siden, som utvendig var utrolig flott. Inne var det imidlertid ingen steder å være. Du så det også på familien som bodde der. Det var da jeg forsto at jeg ville lage en serie med hus som skaper ro.
I dagens samfunn fyker mennesker og tanker rundt på null tid, mener han. Det blir derfor ekstra viktig å skape ro i hjemmet. Det handler om en slags anti-rastløshet.
– Jeg har vært veldig opptatt av hulen som fenomen i tegningene – sofahulen uten vindu, hvor du kjenner på følelsen av å være på et trygt og rolig sted.
Han har mange ganger besøkt Villa Konow i Bergen, tegnet av hans navnebror Frederik Konow Lund. Her finner han nettopp mange av disse gode stedene i huset, hvor man får lyst til å oppholde seg.
– Kanskje vi arkitekter har mistet evnene til å forstå hva som er det vesentlige ved å tegne bolig. For ikke å snakke om alle boligene som bygges hvor arkitekter ikke har vært involvert, er det enda verre.
– Så god boligarkitektur er å skape flest mulig plasser i huset hvor det er fint å være?
– Ja, steder hvor det er fint å være er det store målet – enten det er den trygge hulen, det mer dynamiske uterommet eller det store bruksrommet.
Husene i boken er foreløpig bare papirarkitektur, men det trenger ikke bli sånn for alltid, bedyrer Lund. Bakerst i boken skriver han en beskjed til leserne, om at hvis de finner et hus de liker, er det bare å ta kontakt med arkitekten.
– Kontakten min på forlaget har allerede sagt at det er en 10-12 hus jeg vil ha bygget. Jeg spøkte med henne om at dette i grunnen bare er en avansert ferdighuskatalog, ler Lund.
Ferdigkjøkkenets tyranni
Lund har enda mer samfunnskritikk å komme med – også ting som ikke fikk plass i bokens tekster, men som boken egentlig handler om. For den er også et oppgjør med det vi kan kalle en overdreven materialisme i hverdagsarkitekturen.
– Hvem det er som har fått folk til å tro på at et kjøkken må være et laboratoriumaktig kjøkken til 500 000? Det er et tyranni i blant oss, fullt av lagringsplass, gressplen, betongstein, downlights, gassgrill, utebelysning, forstøtningsmurer i betongstein, ventilasjon, gipsvegger og lekeapparater. Hvis du ser hvordan vi innretter oss når vi bor, så er det bare trist.
– Hva er alternativet?
– I boken ser vi hus med kun en liten grusgang rundt huset, også er det felt med jordbær og frukttrær og forskjellige planter. Som kjøkken kan du klare deg med en lang benk med vask og en plate med gassbrenner på benken. Det er imidlertid sterke økonomiske krefter som får folk til å tro at de må ha alt mulig for å bo. Mine hus er mer bohem enn glamour.
– Men folk liker lagringsplass og teknologi?
– Ja, det finnes moderne ting, men kanskje vi er i en litt forvirret fase akkurat nå? Hvor vi først om noen år skjønner at vi ikke trenger å bruke all den teknologien vi har tilgjengelig.

House of Trees.
Illustrasjon: Fredrik Lund
Long Room House
Illustrasjon: Fredrik Lund
Within the box.
Illustrasjon: Fredrik Lund
Overgrown.
Illustrasjon: Fredrik Lund– Vi undervurderer arkitektfaget
Nordmenn er også veldig praktiske dyr, mener Lund. De liker absolutt lagringsplass og gjerne et sted hvor de kan spyle bikkjen. Og så lenge dette er på plass er alt vellykket.
– Hvis et hus i tillegg har noen kvaliteter og poesi, regnes det mer som et tilfeldig pluss i regnskapet til nordmenn.
Men arkitekten vil gjerne snu på denne norske, praktiske logikken.
– I boligene mine er det omvendt. Her handler det om at romlig kvalitet, poesi og det vakre må komme først. Også kan det praktiske komme etterpå. Her mener jeg at vi arkitekter undervurderer vårt eget fag. Jeg tenker at å bo i husene i boken er å leve et helt annet type liv enn et liv i den traurige arkitekturen mange må bo i nå – hvor hjemmene er blottet for kvalitet og poesi.
– Mener du at folk hadde fått det bedre av å bo i slike hus?
– Ja, absolutt. Jeg tror så mye på arkitektur, at jeg tror den kan løse alle våre problemer, skriver jeg et sted i boken. Det mener jeg faktisk!
Purre på benken, sovende hund
Boken består altså av skisser og tegninger av 42 hus. I tillegg er det små tekster av Lund selv og poesi, samt kortere essay fra arkitektkollegaer som forteller hva de ser når de ser boken, deriblant Siri Moseng, Mads Øiern og Christoffer Harlang.
Det er likevel tegningene som er hovedpersonen i boken. Tegninger av hus som er alt annet enn tomme. Her er det mennesker som ligger på gulvet, det er fyr i peisen, ved som hugges, purre på kjøkkenbenken og hunder som sover i gresset utenfor bygningene.
– Alle detaljene handler om innlevelse og om å være til stede i tegningen. Når jeg lager en plan eller snitt med få streker, plasserer jeg fort et mennesket liggende på gulvet. Da er jeg i rommet og vet hvor stort rommet er. En purre på kjøkkenbenken og en hund bak peisen handler om det samme. Vi må leve oss inn og tenke utenfor boksen. Det er litt som de aller beste barnebøkene hvor man kan kikke på tegningen i timevis før man oppdager en liten mus under stolen.
En fri mann
Lund opplevde for noen år tilbake å bli svært alvorlig syk. Han kjempet seg tilbake til livet og følte nesten at han hadde blitt et nytt menneske. Vennene har siden gitt han kallenavnet Fredrik den annen, fordi han nesten døde og fikk et nytt liv. Vi spør om hendelsen også kan ha betydd noe for bokprosjektet:
– Kanskje jeg har blitt mer barnslig og våger mer? Jeg føler i alle fall at jeg ikke har noen hemninger lenger. Når jeg underviser byr jeg også mye på meg selv, noe som gjør meg godt. Før var jeg mye mer tilbakeholden.
– Du virker veldig fri i boken også?
– Ja, jeg er det. Det handler om at jeg med studentene jobber veldig fritt og de er fantastiske mennesker som har et sterkt ønske om å lære. Kanskje er boken en hyllest til livet i større grad enn om jeg ikke hadde hatt en slik «nær døden»-opplevelse?
Fredrik Lunds bok «Some Houses» kan bestilles her. Boken lanseres på Arkitektenes hus i Trondheim, torsdag 20. juni klokken 20.00. Arrangementet er en del av sommerfesten til Trondhjems Arkitektforening (TAF). Boken vil også lanseres i Oslo arkitektforening (OAF) til høsten.