12 hus Malmø

Arkitekter

  • Förstberg Ling

Foto av fasade på rekkehus i tegl.

Rekkehusprosjekt i Malmø der arkitekten også vært byggherre.

Prosjektet 12 hus er et rekkehuskvartal i Sorgenfri, Malmøs eldste industriområde. Rekkehusene er en del av transformasjonen av området Spårvägen, og ligger mellom en gruppe bygninger fra århundreskiftet i dekorativt murt teglstein og modernistiske buehaller i betong.

I rekkehusene er fasadenes komposisjon den samme mot gaten og mot hagen: seks like brede åpninger over tre plan. Åpningenes funksjoner varierer og den enkle formen får dermed en variert programmering. En fasade av rød teglstein dekker en konstruksjon av massivtre. Trestrukturen er eksponert i interiøret og møter gulv av betong, dører og vinduer i massiv furu og detaljer i galvanisert stål. 

Grunnplanets generøse bredde muliggjør en sekvens av rom rundt et sentralt baderom murt opp av større leirblokker. Mot hagen ligger rekkehusets sentrale oppholdsrom med delvis dobbel takhøyde. Andre etasje består av tre rom. Øverst i huset er det to rom og to terrasser, integrert i bygningskroppen. 

Förstberg Ling har vært både byggherre, arkitekt og totalentreprenør i prosjektet. Ved å kombinere disse rollene har det vært mulig å gjennomføre den opprinnelige visjonen med et høyt nivå av kontroll gjennom hele byggeprosessen. 

Foto av fasade på rekkehus i tegl, med hage fremfor.

Teglfasaden er en referanse til industribyggene i området.

Foto: Markus Linderoth
Interiørfoto av dobbelthøyt rom med massivtrevegger, kjøkken i første etasje.

Førsteetasje har gulv i betong.

Foto: Markus Linderoth
Interiørfoto av dobbelthøy stue med lysinnslipp fra andre og første etasje

Førsteetasje har gulv i betong.

Foto: Markus Linderoth
Interiørfoto ned i stue fra andre etasje, dobbelthøyt rom.

I dette rekkehusprosjektet i Malmø har arkitekten også vært byggherre.

Foto: Markus Linderoth
Interiørfoto av soverom med massivtrevegger og åpen dør til gang.

Det krysslaminerte massivtreet er eksponert i interiøret.

Foto: Markus Linderoth
Interiørfoto av rød trapp i bolig.

Rekkehusene har tre etasjer.

Foto: Markus Linderoth
Foto av utgang til takterasse på rekkehus i tegl.

Rekkehusene har tre etasjer.

Foto: Markus Linderoth
Foto av takterasse på rekkehus i tegl.

Rekkehusene har tre etasjer.

Foto: Markus Linderoth
Arkitekt
  • Förstberg Ling
Oppdragsgiver
  • Förstberg Ling
Ferdigstilt
  • 2022
Adresse
Malmø, Sverige
Foto
  • Markus Linderoth
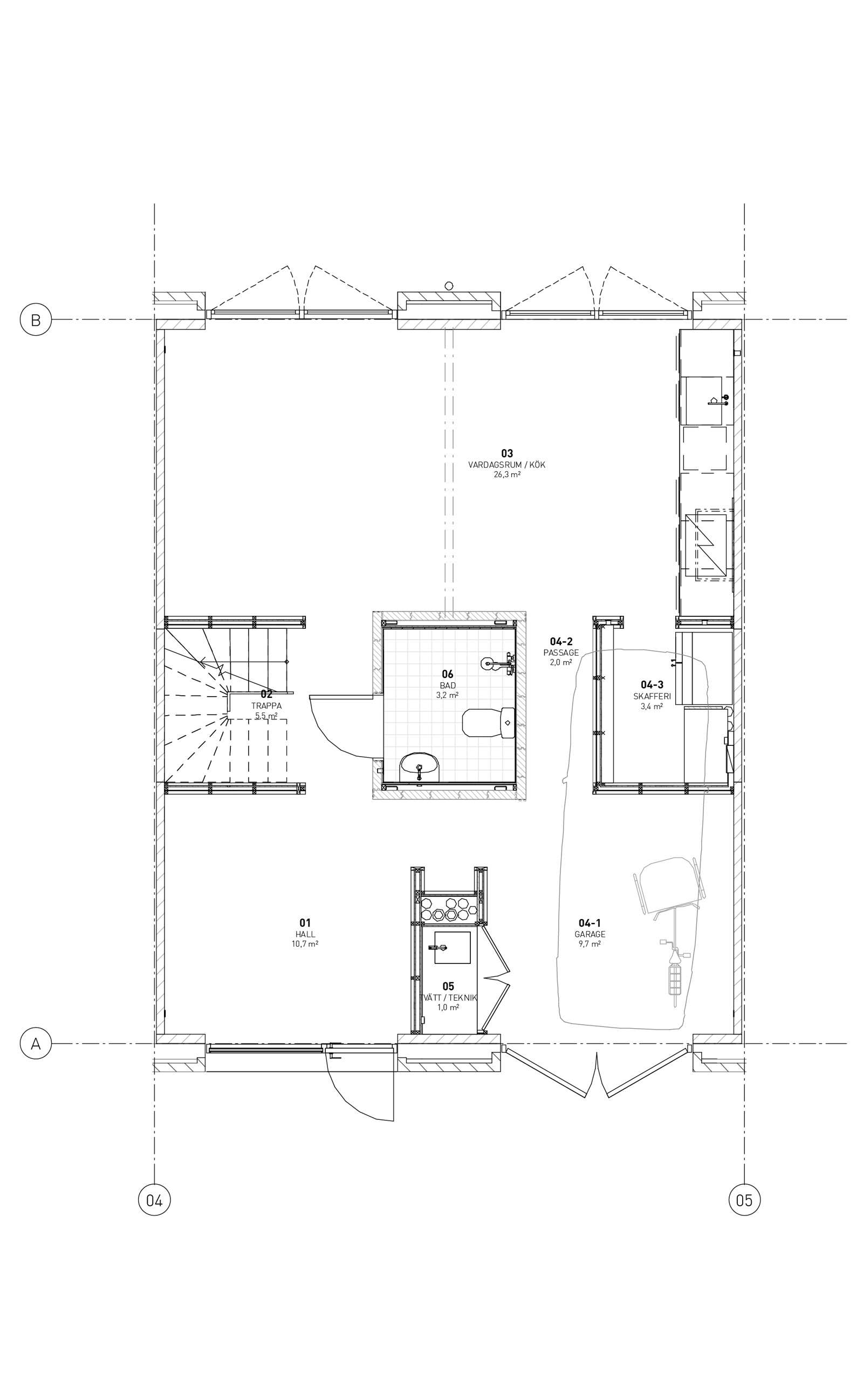
Plantegning av første etasje på en bolig i et rekkehus. Arkitekt tegning.

Plan, 1. etasje.

Illustrasjon: Förstberg Ling
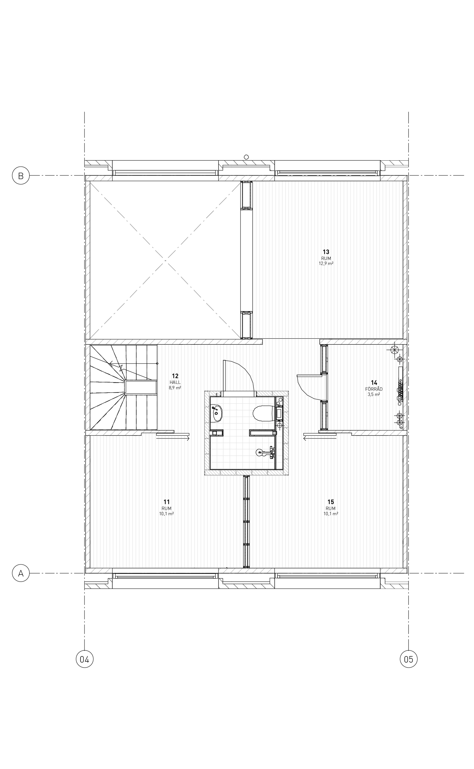
Plantegning av andre etasje på en bolig i et rekkehus. Arkitekt tegning.

Plan, 2. etasje.

Illustrasjon: Förstberg Ling
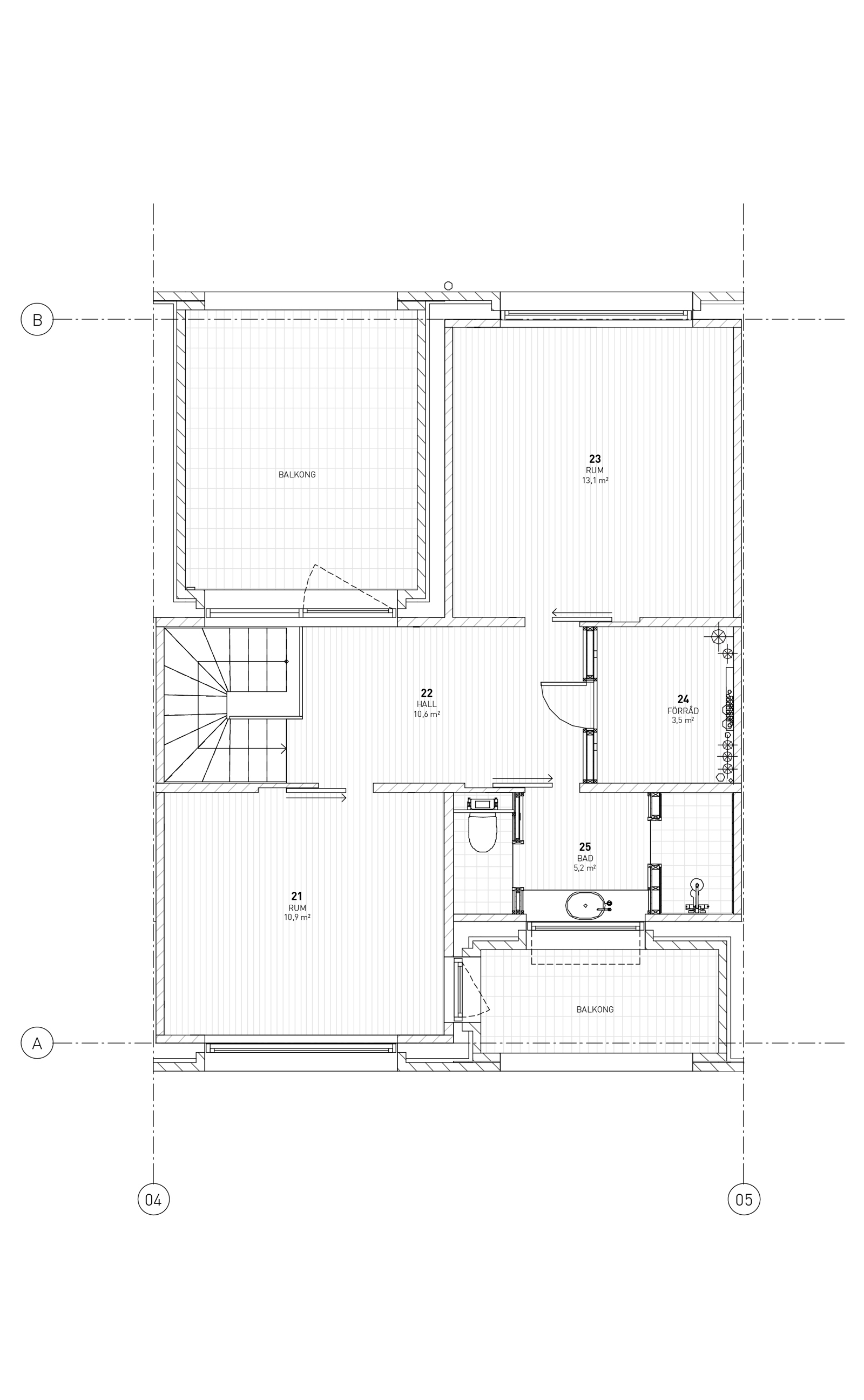
Plantegning av tredje etasje på en bolig i et rekkehus. Arkitekt tegning.

Plan, 3. etasje.

Illustrasjon: Förstberg Ling
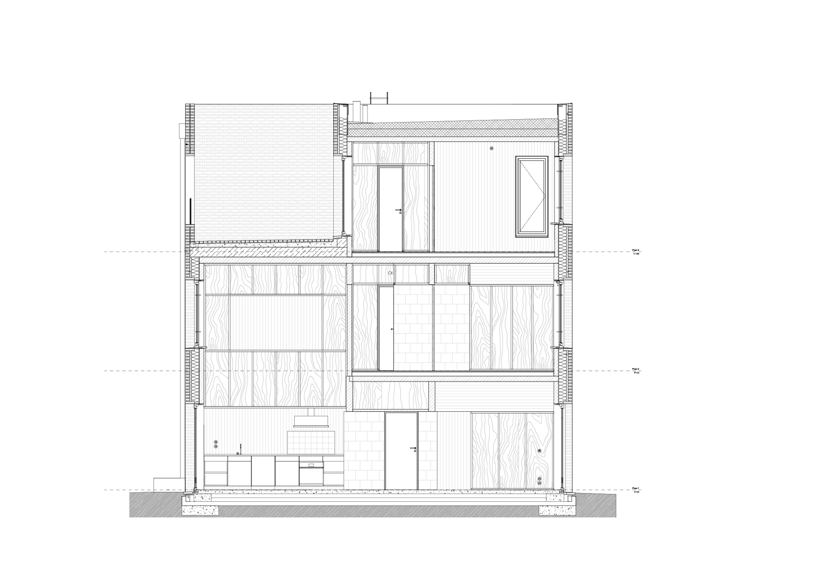
Snitt gjennom treatsjers bolig i rekkehus. arkitekt tegning.

Snitt.

Illustrasjon: Förstberg Ling