
Den nye, blåfargede eneboligen Alice's National Romance with Modernity skiller seg ut i det eldre villaområdet i Djursholm i Stockholm.
Den nye eneboligen er oppført på en tomt hvor det allerede står en enebolig fra 1905, der oppdragsgiver vokste opp. Eiendommen ligger i det eldre villaområdet Djursholm, hvor det nasjonalromantiske preget i både arkitektur og landskap nå utfordres av nye idealer. Ved første befaring var tomten skjult bak en høy granhekk som virket til å beskytte hagen fra samtiden. Av oppdragsgiver ble oppveksten i hagen beskrevet som en Alice i eventyrland-erfaring, der gamle trær og hekker skapte et rom for fantasi og lek.
For å bevare hagen intakt er inne- og utomhusprogrammet samlet i én monolittisk gest. Ambisjonen var å bruke et etablert og hverdagslig byggemateriale, i form av lecablokker, og krysse dets begrensninger med eventyrets frihet.
Alle tekniske installasjoner er samlet i en klimabeskyttet kjerne, som er omsluttet av uisolerte rom. Om sommeren kan store glasskyvedører åpnes mellom inne- og uterommene. Interiøret er preget av ubehandlede lettbetongblokker, slipt betonggulv og synlige stålkonstruksjoner. På toppen av bygget ligger en stor takterrasse.

Huset er oppført i den store hagen til en enebolig fra 1905.
Foto: Mikael Olsson
Utvendige trapper leder opp til en stor takterrasse.
Foto: Mikael Olsson
Om sommeren kan de store glasskyvedørene i oppholdsrommet åpnes mot hagen.
Foto: Mikael Olsson- Byggfenomen
- Emma og Andreas Treffenberg
- 2018
- Daniel Johansson
- Philip Bergerhoff
- Mikael Olsson

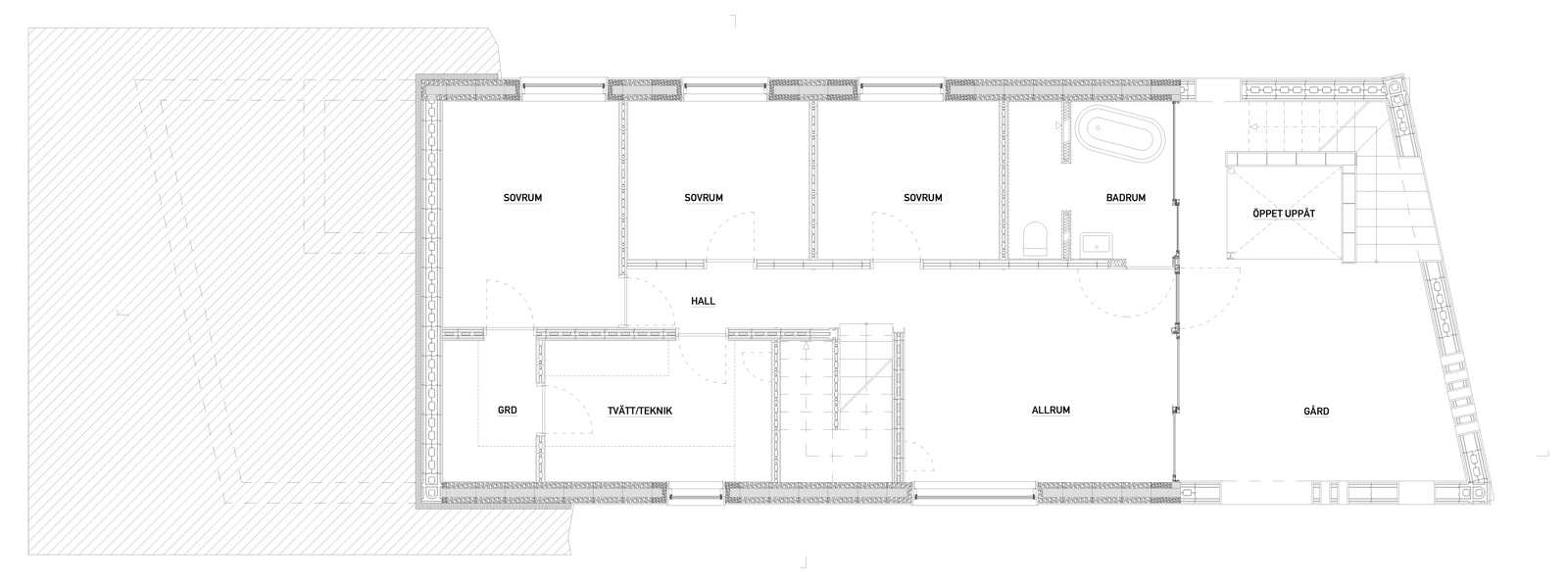
Plan, U. etasje.
Illustrasjon: Byggfenomen v/ Daniel Johansson og Philip Bergerhoff
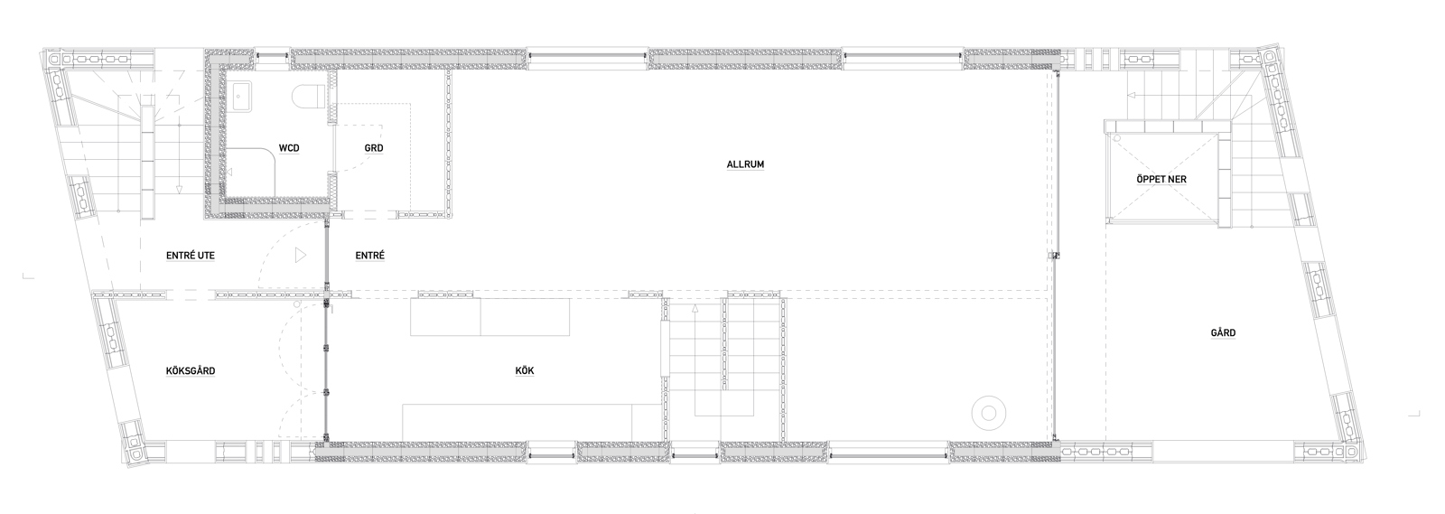
Plan, 1. etasje.
Illustrasjon: Byggfenomen v/ Daniel Johansson og Philip Bergerhoff
Tak plan.
Illustrasjon: Byggfenomen v/ Daniel Johansson og Philip Bergerhoff
Snitt.
Illustrasjon: Byggfenomen v/ Daniel Johansson og Philip Bergerhoff