 
	    I årene etter krigen lærte rasjonaliseringens nød arkitektene å spinne med en sober tråd, og ut av begrensninger sprang kvaliteter. Med Huset på søyler vender Sanden+Hodnekvam tilbake til disse verdiene i en tid da måtehold er viktigere enn noen gang.
Huset på søyler ligger på en kupert tomt på Nesodden, fylt med bjørketrær og omkranset av skog og mindre fritidsboliger i skrånende terreng. Det lange og smale saltaket er ikledd sinusplater med rikelige takutstikk og fremstår med en nær arketypisk silhuett der det spenner over terrenget og gir le mot vind og innsyn mot øst.
Bygget er nøkternt på grensen til primitivt med rendyrket form og tette gavler. De lave, horisontale linjene står i perpendikulær motsetning til de vakre bjørkestammene. Tilpasningen til terrenget er god, der huset ligger skreddersydd mellom bergknauser og trær, nøye planlagt etter 3D-scanning av topografien. For å skape gode uterom uten å endre landskapet, ble huset plassert på det minst brukbare stedet på tomten. Plasseringen i LNF-område ga visse føringer og lå til grunn for at huset er hevet på søyler slik at det forstyrrer omgivelsene i så liten grad som mulig.
Det er gledelig å se et hus der naturen er bevart under og rundt huset, i motsetning til de destruktive konsekvensene av den typiske betongsålen.
- Sanden + Hodnekvam Arkitekter
- Cathrine Brekke og Nikolai Yde Aksnes
- 136 kvm.
- 2022
- John Sanden siv.ark. MNAL og Ingvild Hodnekvam siv. ark. MNAL
- Byggmester Sæbø og Skånseng ved Alexander Sæbø og Stefan Skånseng
- Strøm og vedfyring
- Mekanisk
- Utstrakt bruk av tre, også i fundamentering. Ingen betong i fundamentering.
- Totalentreprise
- Thomas Ekstrøm, John Sanden og Ingvild Hodnekvam
 
                        Rasjonell organisering
Huset er inndelt i 11 modulære enheter med 2,2 meters mellomrom mellom aksene i bærepunktene. Rammeverket av søyler fra fundament til gesims på utsiden og fra ferdig gulv til himling på innsiden, omslutter huset på begge langsidene. Regelmessigheten i dette tektoniske spillet er byggets styrke og i det ligger en motstand mot å dandere for mye eller over-designe.
Samtidig så gir konstruksjonsprinsippet i det kompakte tverrsnittet fleksibilitet for eventuelle fremtidige endringer.
Den langstrakte planen er en rasjonell organisering av en bolig med tydelige skiller mellom lukkede og åpne rom, mellom det private og det utadrettede. Effekten er en god vekselvirkning mellom de lange blikk-aksene og de mindre, komprimerte rommene. Den åpne planen og kontakten med verden utenfor, gjør at huset føles større enn det er. Landskapet utenfor trekkes inn i opplevelsen av huset, uten at det oppleves som overeksponert.
Abstraheringen av svalgangens lange akse der vinduene fyller hele den modulære bredden, vekselvis med tette vegger, understreker rytmen i den konstruktive rammen og gir både utsikt og maskering av naturen utenfor.
 
                        På kjøkkenet er det et større vindu ut mot fjorden, og et mindre ut mot den lille veien utenfor.
Foto: Thomas Ekstrøm 
                        Lengst mot nord er huset på sitt høyeste, med over 2,5m høye søyler. De store vinduene i hjørnet av peisestua går rett ut i trekronene utenfor.
Foto: Thomas EkstrømMellom ute og inne
Videre gjør skyvedører at store deler av gangarealet også kan innlemmes i soverommene slik at det dannes mer private soner ved behov. Det vanskelige mellomrommet mellom ute og inne i det nordiske klimaet er løst med en glasset himling over en vinterhage som i praksis blir husets stue. Effekten er god, med et diffust og jevnt lys i rommet, i kontrast til den lune kjøkkenkroken.
Skillet mellom back of house og front of house er gjennomgående, med soverom og passasjer som bryter opp kjernen og skaper tverrgående forbindelser. Tekniske installasjoner er godt inkorporert i planens interne batteri, som inneholder rørføring, ventilasjon, bad og lager. Ventilasjonen går gjennom smale skreddersydde kanaler bak finérplatene på veggene, drillet ut i sirkulære mønstre. Dett er en av mange detaljer som sørger for at den moderne teknikken er godt innkapslet uten forstyrrende produkter i synsfeltet.
Eksponert treverk er gjennomgående i vegger, tak og gulv, med sperrer i grovere treverk og marktegl på gulv i husets åpne sone sentralt. Vegger og tak i interiøret er kledd med furu-finér og listverk som er aktivt brukt som komposisjonselement på de innvendige veggene.
Eksteriøret er kledd med tjærebeiset malmfuru som gir assosiasjoner mot Wenche Selmers varme palett, men også case-study husene på den amerikanske vestkysten fra etterkrigstiden.
 
                        Flere lange siktlinjer gjennom huset gjør at huset føles større enn det er.
Foto: Thomas Ekstrøm 
                        Midt i huset ligger allrommet, i praksis i bruk som stue, med teglstein på gulvet og tak av 3-lags isolerglass og polykarbonat, fuget fast til den eksponerte trekonstruksjone.
Foto: Thomas EkstrømSelmer i bilen
For oss som jobber med tradisjonelle bygg, leder rammeverket tankene mot utmurt bindingsverk, der stolper og sviller er både bærende og dekorative elementer i en fasade. Graver en dypere i norsk byggeskikk er det middelalderske langhuset en naturlig presedens i sin lineære oppdeling av program. Samtidig ligger andre aspekter av prosjektet nærmere internasjonale eksempler, som Glenn Murcutts stolpehus i den australske villmarken eller Samuel Mockbees eksperimenter i Alabama. Kanskje kan man trekke en linje til Jean Prouvés Pavilion Demontable fra 1946 – et byggesystem som kombinerer det reversible med gode rom og materialer, med en følelse av lettbeint flyktighet.
Sanden+Hodnekvam nevner selv Villa Schreiner av Sverre Fehn som en av inspirasjonskildene for bygget, men det er Wenche Selmer vi diskuterer i bilen hjem. Både Fehns og Wenche Selmers dypt empatiske arkitektur ble i sin tidlige fase preget av rasjonering og måtehold etter krigen. Denne arkitekturen sprang ut av en universal modernisme som etter hvert fikk et stedsspesifikt tilsnitt. I motsetning til mange av arvtakerne etter den norske poetiske modernismen, handlet den tidlige etterkrigsmodernismen slik Selmer og Knut Knutsen praktiserte den mindre om det skreddersydde smykket og mer om en varm og humanistisk hverdagsarkitektur.
Rasjonaliseringens nød lærte arkitektene å spinne med en sober tråd, og ut av begrensninger sprang kvaliteter. Kanskje er vi igjen ved en slags nød, i alle fall ved en korsvei. Kombinasjonen av målsettinger om bærekraftig byggeri, nedgangstider og relativt høy timepris for norske håndverkere betyr at vi som arkitekter igjen må lære av tidligere tiders ressursknapphet for å skape en arkitektur tilgjengelig for et større utvalg av befolkningen.
Sanden+Hodnekvams prosjekt representerer i den sammenheng et særdeles vellykket stykke rasjonell samtidsarkitektur bygget på et begrenset budsjett som både bærer i seg en kontinuitet til det foregående og mye nybrottsarbeid. Det er et modent prosjekt fra et ungt kontor som viser at det er mulig å skape en rikholdig, bærekraftig og tidløs arkitektur med store romlige kvaliteter tuftet på tydelige konstruktive prinsipper.
 
                        Inngangsparti. Den store takflaten med sinuskurvede plater av aluzink og polykarbonat er en markant del av husets fasade.
3d-scan var viktig hjelp i arbeidet med å plassere bygningen nøyaktig mellom eksisterende bergknauser og vegetasjon.
Foto: Thomas Ekstrøm 
                        Fasade
Foto: Sanden+Hodnekvam Arkitekter 
                        Situasjonsplan
Foto: Sanden+Hodnekvam Arkitekter 
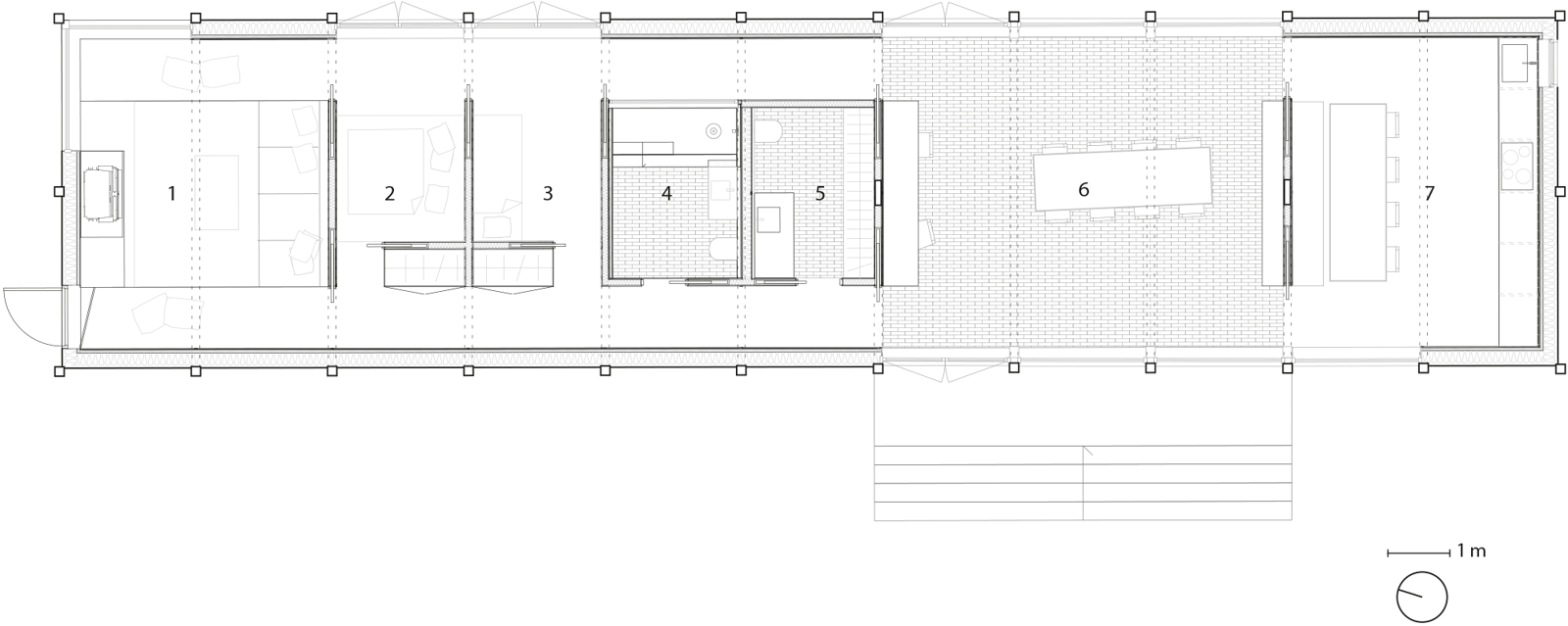
                        Plan. 1. Peisestue, 2. Soverom, 3. Soverom, 4. Bad, 5. Vaskerom og garderobe, 6. Allrom, 7. Kjøkken
Foto: Sanden+Hodnekvam Arkitekter 
                        Detalj
Foto: Sanden+Hodnekvam ArkitekterPå besøk hos hverandre
Arkitektur utfordret to av Norges mest lovende arkitektkontorer til å besøke og beskrive hverandres prosjekter.
Sanden+Hodnekvam og Kastler Skjeseth har de siste årene etablert seg som to av de fremste eksponentene for hvordan sentrale motiver i norsk arkitektur ikke bare videreføres, men utvikles av en ny generasjon.
Vi ba dem anmelde hverandres prosjekter, Hus på søyler og Link House, for å vise frem byggekunst av høy kvalitet. Og for å få vite hvordan en ny generasjon arkitekter tenker om naturtilpasning, måtehold og gjenbruk.
I årene etter krigen ble materialknapphet og nøkternhet sentrale parametere i moderne norsk arkitektur. Og i møte med klimakrise og krav om mer miljøvennlig bygging, er de mer aktuelle enn noen gang.