
Jonas Reins gate 11 seier noko om at arkitektanes blikk på kontekst er i bevegelse.
Eit bu med auge. Tanken kjem der eg står i Jonas Reins gate med andletet vendt mot husnummer 11. Det er dei langstrekte vindauga som pregar fasadelivet. Fasadespelet passar seg kanskje betre, då det her fins reglar, like mykje som det finst avvik. Marina Bauer og Espen Folgerø frå arkitektkontoret Opaform har på Nedre Nygård teikna ein heimstad.
Bustaden nyttar seg av dei siste ledige areala i ein tett bygard frå midten av 1800-tallet. På det som var to parkeringsplassar, med ei grunnflate på 77 kvadratmeter, er nybygget reist. Kvartal-fasaden er mangfaldig der einebustaden sitt mellom ein høg fleirmannsbustad og ein låg sveitservilla. Mellom einebustaden og villaen skapast eit felles gardsrom. Som infill og fortetting, ser eg prosjektet som ibuande verdifullt for byen.
Jonas Reins gate skrånar frå realfagsbygget til UiB på Høyden, ned mot Nygårdsgaten. I ein bydel prega av utleigebustadar og studenthyblar, er det forfriskande å sjå at ein familie på seks kan bu eit steinkast unna Grieghallen. Rause 340 kvadratmeter bruttoareal svarer til familiens ønske om å bu tett på byen. Det er ikkje til å stikke under stol at dette er ein type fortetting dei færraste har råd til.
- OPAFORM
- Lene Faye Jordan-Johannessen og Baard Jordan-Johannessen
- 300 kvm.
- 10000000 NOK eks. mva
- 2023
- Marina Bauer, arkitekt MNAL
- Espen Folgerø, arkitekt MNAL
- Tord Rosenberg Træen, arkitekt MNAL
- H2 Hardanger AS
- 33 Kvm BTA pr. beboer
- Tak: 0,17 W/kvmK,
- Vegg: 0,18 W/kvmK,
- Gulv mot grunn: 0,13 W/kvmK,
- Vindu: 1,12 W/kvmK
- Mekanisk
- Delt
- Geometrien på bygget gir lite overflate i forhold til volum. Tiltakets plassering gjør at klimagassregnskapet blir gunstig.
- 10 mill. NOK eks. mva (2019-2023)
- Arkitekturfoto v/Artishot

Arkitektane fortel om eit prosjekt med mange aktive ammer og føringar. Diskusjonar mellom ntikvar, handverkarar og klient har satt sitt reg på bygget vi ser i dag.
Foto: Arkitekturfoto v/ArtishotMeir enn ei trapp
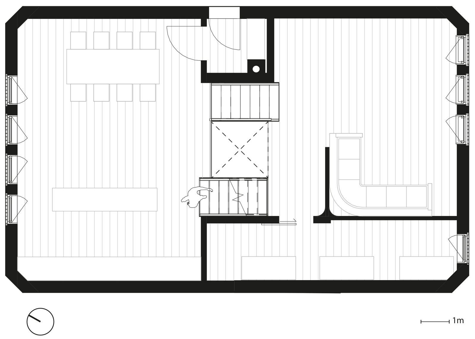
Først inne møter ein det som opplevast som hovud-gesten, nemleg trappa. Dei til saman seks halvetasjane krinsar rundt trappekjernen, med lyssjakt i topp. Lyssjakta kan, ved naudsyn, bli til heissjakt. Frå inngangspartiet beveger ein seg opp trappa, eller inn i ei stove med kjøkken. Sjølv med ein og ein halv etasjars takhøgde gjev kjellerstova ei huleaktig kjensle. Her finn ein tilgang til rommet bak dei tre samanhengande vindauga lågt på fasaden, og det er mogleg å trekke glassfelta til side og opne verkstadsrommet mot det som skal bli ei miljøgate.
Oppover etasjane skyt trappa forbi rekkverk og trer inn på kvart etasjeskille. Her kan ein sitje seg ned, i grensa mellom dei to plana. Trappa opplev eg som både-og, ikkje berre transport, men ei rekke rom i seg sjølv. Byggherren fortel om kommunikasjonen halvetasjane har seg i mellom. I eit opent trapperom med harde overflater vandrar lyden, på godt og vondt. I toppetasjen finn ein husets andre kjøkken. Her følgjer himlingen forma på det spisse taket, noko som gir ei svært generøs takhøgde. Ein innebygd balkong på den vestvende fasaden gjev utsyn over resten av Nedre Nygård.

Dei franske balkongane føyer seg atterhaldne inn i fasadelivet. Ikkje som utkragande tunger, men ein varsam gest til gaten.
Foto: Arkitekturfoto v/ArtishotOrnamentikk
Ute på gata igjen, når det kjem til bustadens fasade, er det to forhold eg vil beskrive som avgjerande: glassflatene og handverks-ornamentikken.
Vindauga ligg taktfast på horisontalar som understrekar eksisterande fasadeinndelingar. Brorparten av glassflatene strekk seg frå golv til tak. Sett innanfrå, gjev det ei kjensle av å møte utsida, om så gata, nabo, bakgard eller brannvegg, med heil kropp. Fiffig er det runde vindauget, kvar dei langstrakte formata ikkje står til oppgåva. Sjølve vindauga ligg bak audmjuke franske balkongar og vannbretta ein, kanskje to centimeter utanpå eit ellers slett fasadeliv. Dei einsfarga, presise fasadane forsterkar opplevinga av ei geometrisk forenkling. Dei klassiske motiva bustaden har fått oppmerksamd for, er om ikkje anna varsamt utført.
Kalkfasaden har fått ein knapp handverks-ornamentikk ved at ein reiskap dras vertikalt opp veggene. Overgangane synar ei tilstadeverande hand. Her har arkitekten lykkast med å utfordre eit handverk, teikne reiskapet for jobben, og i gjengjeld fått eit fasadespel som understreker de øvrige vertikale motivene i fasaden. Vindauga ligg tilbaketrekt i smyget, som gjør kalkpussen gjennomgåande. Byggets hjørner kuttast på 45° vinklar, som lager eit flott møte mellom takrenne og gesims. Her har dei ulike laga blitt adressert saman, og ein ser ikkje etterpåklattede funksjonar.

Det er tydeleg at her er ein klient som skjønar betydinga av detaljering, gode materialar og godt handverk.
Foto: Arkitekturfoto v/ArtishotEin høflig nabo
Nokre begrep gjentek seg når arkitekten sjølv beskriv nybygget. Ein høflig nabo, tidsdybde og kontekst. I førstnemnde ligg ei urban forplikting til ikkje berre å svare klienten, men også sjølve byveven, fasade- og folkelivet. Dette står i kontrast til den modernismen, der brudd nærmest er eit iboande sjangertrekk, kvar insentivene er å gje klienten ei særskilt oppleving. Forpliktinga mellom arkitekten og samfunnet er på eit vis ved skiftande grunn. No skal arkitekturen være høflig! Det kan ein seie at Jonas Reins gate 11 er, og det er vel nettopp derfor einebustaden er nominert til Arkitekturopprørets heiderspris.
Om ein ser til ein annan del av byen, kvar kontoret teikna eit jevnstort bygg mellom dei historiske arbeiderbustadene på Nøstet for drøyt fem år sidan, er ulikskapen slåande. Bygget har ei annleis form, med vinkla veggliv i treverk. Utan vidare innsikt i dei tilhøyrande prosessane mellom arkitekt og byggherre, sitt eg likevel igjen med tanken om at arkitektanes blikk på kontekst er i bevegelse. Korleis ein ny bustad i byen «blir en del av en tidsdybde» slik Opaform beskreiv det, kan nok opne fleire veger enn skiljene mellom klassiske søyler og moderne utkragingar.
Kva sier dette om arkitektens evne til å bevege seg når det først skjer noko i dei ideologiske beveggrunnene? Til det kan ein sei at arkitektens rolle alltid har vert å kontinuerlig formgi eit nytt bilete av verda, i takt med dei beveggrunnene som eksisterer og samstundes blir til.

Fasade.
Illustrasjon: OPAFORM arkitekter
Plan.
Illustrasjon: OPAFORM arkitekter
Langsnitt.
Illustrasjon: OPAFORM arkitekter