Nettas Hus Tvedestrand

Arkitekter

  • Kastler Skjeseth Architects

Foto av resort med hvitmalt bygg, store søyler, badebasseng og trær i bakgrunnen.

Knus de hellige sannheter: Med Nettas hus har Kastler Skjeseth tegnet et lite stykke sørlandsk Miami, et påkostet mini-resort man ikke tror selv når man ser det med egne øyne.

Det er ikke helt bibelbeltet, ikke ennå. Det er likevel umiskjennelig Sørlandet, det er aldri til å ta feil av. Der man brått befinner seg i det norske deep south, på smale, slyngete veier gjennom frodig eikeskog, med tilsynelatende koselige hvitmalte stuer ved veien, som likevel har et mystisk, gotisk skjær over seg.

Dette er et sted hvor uventede ting kan skje, til tross for de idylliske, landlige omgivelsene. Og kommer man kjørende østover fra Tvedestrand, mot sjøen og tar en sving nedenfor middelalderkirken i Dybvåg, får man nettopp en overraskelse.

Arkitekt
  • Kastler Skjeseth Architects
Landskapsarkitekt
  • Oveland Utemiljø AS
Oppdragsgiver
  • Teleplan Eiendom og Fritid AS
Bruttoareal
  • 2000 kvm.
Ferdigstilt
  • 2025
Arkitekt medarbeidere
  • Benjamin Sjøberg
  • Louis Gervais
  • Samuel Causse
  • Patrcik Sture
  • Amandine Kastler
  • Erlend Skjeseth
Landskapsarkitekt medarbeidere
  • Ingvild Ødegaard Ottesen, Oveland Utemiljø
Konsulenter
  • RIB: Ommund Hansen, Safe Control Tvedestrand
  • RIBr: Geir Harnes, Prosjektgruppen AS
  • RIV: Øyvind Berntsen
Adresse
Kirkeveien 34, Dypvåg, Tvedestrand
Brutto areal
  • 1100 kvm eksisterende bygg
  • 900 kvm tilbygg
Foto
  • Max Creasy
  • Erlend Skjeseth
  • Louis Gervais
Foto av resort med tennisbane og flere hvitmalte bygg med høst trær rundt.

Et ambisiøst og kompakt anlegg trapper seg ned, mellom hei og fylkesvei.

Foto: Max Creasy, Erlend Skjeseth, Louis Gervais

Velkommen til Miami

Et påbygget 1920-tallshus, et paviljongbygg med treningsrom og en stor flerbrukshall under bakken, et motell-aktig anneks med garasje og leiligheter, samt svømmebasseng, lounge, tennisbane, engelsk hage og carport. Det er dette prosjektet «Nettas hus» består av, tørt beskrevet. Men en liste over program er både nødvendig og høyst utilstrekkelig for å beskrive arkitekturen vi her har med å gjøre.

I 2021 kjøpte eier og arving av telekommunikasjonsselskapet Teleplan, Jørn Longem, det nedlagte gamlehjemmet rett ved Dybvåg kirke, et kvarters kjøring fra Tvedestrand, for å bygge et sted for ulike firmaaktiviteter, fremfor bruk av konferansesenter, som også kan fungere som et pensjonat, et sted for rekreasjon/et feriested for ansatte, som må tåle felles samvær fremfor egendisponert hytte. Kastler Skjeseth hadde allerede jobbet for Longem og transformert en gammel låve til fritidsbolig, og fikk oppdraget med å pusse opp gamlehjemmet fra 1925, som hadde stått tomt i mange år.

Så hva slags prosjekt er egentlig dette? La meg begynne med å si at det er et veldig tidstypisk prosjekt: En av Norges rikeste menn har transformert et gammelt eldrehjem til en slags resort for de ansatte i sitt telekommunikasjon-firma (som har tjent pengene sine i Saudi-Arabia og nå tilbyr teknologi til forsvarsindustrien), som tar over en tidligere offentlig velferdsinstitusjon – men som samtidig tilbyr en flerbrukshall som kan brukes av lokalsamfunnet på et sted der den lokale skolen nylig er blitt lagt ned. Så mange av tidsåndens tråder samles i dette prosjektet.

Dette gjelder også selve arkitekturen. Her er ikke bare nytt, gammelt og gammelt som ser ut som nytt i skjønn forening. Her er også tre som ser ut som betong, og betong som ser ut som tre.

Prosjektet føles på mange måter som et unntak, et bygg der naturlovene er omgått, oppløst. Ikke bare fordi Kastler Skjeseth bryter med forventningene til ærlighet i materialenes uttrykk eller fordi de leker seg med referanser, men fordi de gjør det i en skala og med en pengebruk som man sjelden ser i ny, norsk arkitektur. Dette er ikke moderne rikmannsarkitektur, hvor arkitektene har fått frie tøyler, men et merkelig fabeldyr.

Hvordan skal fremtidens arkitektur forholde seg til gammel bebyggelse? Jeg vet ikke om Nettas hus nødvendigvis er et svar på spørsmålet, men det er utvilsomt et fruktbart innspill i diskusjonen.

Situasjonssnitt med teksturerte fasader av en resort med fire bygninger, arkitekt tegning.

Fasade, hovedhus.

Illustrasjon: Kastler Skjeseth Architects
«I Nettas hus er det tre som ser ut som stein, men det er også stein som ser ut som tre.»

Kastler Skjeseth-Kulminasjonen

Det unntaksmessige ved prosjektet gjelder også selve programmet: Et privat hotell for de 750 ansatte og for forretningsforbindelsene til Longems firma, hvor man kan ta med seg familie, som kan bade, spille tennis eller padel, men hvor det også er mulighet for å jobbe, og hvor det også er funksjoner tilgjengelig for lokalbefolkningen. Etter at første del av prosjektet, det tidligere gamlehjemmet, stod ferdig, har interessen vokst enormt blant de ansatte, og Longem trengte flere rom. Dermed ble et halvferdig lagerbygg omprosjektert til enda flere leiligheter. Og som om ikke prosjektet var eklektisk nok fra før, har denne gradvise prosjekteringen gitt arkitekturen enda flere krumspring.

Og inn i dette kommer altså Amandine Kastler og Erlend Skjeseth, som begge har utdannelse og arbeidsbakgrunn fra London. Sammen med Benjamin Sjøberg, som har vært ansatt på kontoret siden 2019, har de gjort seg bemerket med sin grundig undersøkende, men samtidig lekne og moderne tilnærming til transformasjon og tilbygg til privatboliger på det østlige Sørlandet. Nettas hus har en helt annen skala, og kan sees som en kulminasjon av det kontoret har jobbet med hittil. «Et sånt byggeprosjekt kommer vi ikke til å få igjen i karrieren», skal de unge håndverkerne ha sagt til hverandre under arbeidet. Det samme kunne vel arkitektene selv også ha sagt.

Fremmedgjørende

På toppen troner gamlehjemmet fra 1925, som er utvidet i alle retninger, på en tilsynelatende sømløs måte. Tomten trapper seg nedover, med det litt Las Vegas-aktige paviljongbygget, med en fasade med store hvitmalte søyler i massivtre, med et speilblankt svømmebasseng foran seg. Nederst på tomta ligger det motell-aktige annekset, med seks hotelleiligheter på rekke og rad i andre etasje, over en rekke med fem garasjeporter. Alle byggene har ulik takform: Valmet, flatt, pult.

Kastler Skjeseth er ikke redde for å la sine ny- og tilbygg gli (nesten) sømløst inn i historiske omgivelser, og de er heller ikke redde for å tilføre helt moderne elementer i interiørene. Den lettheten de forholder seg til dette komplekset på føles befriende, både når man ser arkitekturen deres på bilder, og når man møter den i levende live. Men det er unektelig også noe fremmedgjørende ved det, at man ikke vet hva som er hva, og ikke aner hva som venter rundt neste hjørne. Samtidig er denne fremmedgjøringen åpenbart også tilsiktet.

Det er også noe fremmedgjørende, eller desorienterende, over dimensjonene. På bilder ser de store søylene og betongkonstruksjonene ut som noe som skal være omgitt av store hager, kanskje en lang allé av en oppkjørsel. I virkeligheten passerer den smale fylkesveien bare noen få meter unna på den ene siden, og restene av en sprengt fjellknaus utgjør en vegg på den andre siden. 

Prinsippet om stram symmetri i fasaden og mer oppløst og usymmetrisk innvending og i bakkant, har Kastler Skjeseth brukt i flere av sine andre transformerte sørlandshus. Men aldri før har det fått slike voldsomme utslag som i de store, høyglanshvitmalte tresøylene ut mot bassenget her. Det er noe nyklassisistisk over det, men altså via Miami.

Det er noe amerikansk over det hele – i både den rikmannsaktige overfloden, og i motell-motivet som kjennetegner det nederste nybygget, med parkering i basen og svalgang med inngang til soverom i etasjen over. Det er også noe forvirrende, nesten desorienterende, ved hvordan det er så åpenbart stilig og harry på samme tid. Både smakfullt og smakløst. Her er en trapp i rød pigmentert betong ned fra treningsrom til flerbrukshall, der håndløperen er bygget av en av Norges beste trappemakere, Arve Lauten, en av de få som lager sånt for hånd. Her er veggdekorasjoner laget med steiner som Longems far samlet på en strand i Saudi - Arabia på 1970-tallet.

Det måtte ikke bli for prangende

Det ser kanskje litt postmodernistisk ut, men egentlig er dette sørlandsk proto-postmodernisme, er tesen til Kastler Skjeseth. Det har alltid vært internasjonal innfl ytelse på byggeskikken, særlig langs sørlandskysten, hvor den har vært særlig tvetydig, mener Skjeseth. Og da norske sjømenn dro til London og så georgiansk arkitektur på 1800-tallet, kom de hjem og la puss på tømmervegger og endret fasadene sine så de skulle se mer symmetriske ut. Det er i denne ånden Kastler Skjeseth nå forsøker å legge enda et lag med tid utenpå sørlandsarkitekturen. Ikke ved å ligne på det gamle, men ved å videreføre tankene som lå i det gamle. 

Kastler Skjeseth er ikke redd for å nevne referanser, verken til byggeskikk eller til renommerte arkitekter. Tvert imot, når de snakker om referansene sine, er det tydelig at disse er en vel så viktig næringskilde i arkitekturen som ønsket om å skape noe eget. Og ja, det er en postmodernist som Robert Venturi i Nettas hus. Men det er også Peter Märkli, Rudolf Oligiati og Hermann Czech, arkitekter som har stått litt på siden av det modernistiske prosjektet, bemerker Skjeseth. 

Like gjerne som postmodernismen, vil Skjeseth nevne manierismen som et slags forbilde. Den rare avarten av renessansen, før barokken, der enkeltelementer skaleres opp uten funksjon, og man får en selvbevissthet inn i den ellers stramme og symmetriske renessansearkitekturen. 

Noen arkitekter mener man bare bør ha én idé i et prosjekt. Her er det mildt sagt ikke mangel på idéer. Samtidig er det en gjennomgangsmelodi: Hva skjer når man ønsker at noe skal være noe annet? Det å hente referanser og blande dem inn i lokal byggeskikk, har man alltid gjort. I Nettas hus er det tre som ser ut som stein, men det er også stein som ser ut som tre, ved at branntrappene i hvit betong på hver side av det gamle eldrehjemmet er støpt med konkave bord for å se ut som tre. Det man åpenbart har prøvd å få til i hele prosjektet, er at ting har tekniske funksjoner og ornamentale funksjoner, samtidig. 

Når jeg tenker og skriver om prosjektet, tar jeg meg selv i å konsentrere meg mer om fasader enn om rom. Men kanskje det er symptomatisk for hvor arkitektene har brukt tiden, eller lagt oppmerksomheten: De innvendige rommene er stort sett relativt konvensjonelle (et hotellrom, et treningsrom, en flerbrukshall, og så videre). 

Under befaringen påpeker Skjeseth at fremstillingen av hvit betong – som man gjør ved å tilsette knust marmor – har noe ikonoklastisk, billedstormende, ved seg. Og man kan jo spørre seg om det ikke er noe ikonoklastisk ved hele prosjektet til Kastler Skjeseth, slik det settes på spissen, arkitektonisk og økonomisk, i dette prosjektet: De hellige sannhetene skal knuses, enten de kommer fra modernismen, nyklassisismen, barokken eller den tradisjonelle byggeskikken. Ingenting er sånn som det ser ut til å være, og det er akkurat sånn det skal være.

Faren ved denne innfallsvinkelen er at det blir for mye av det gode. Men så eklektisk er dette prosjektet heller ikke. Det finnes en helhet her også, om enn noe banal: alt knytes sammen gjennom det hvitmalte og det rødbrente, i form av rødfarget betong og en noe umotivert teglvegg. Jeg besøker et nesten ferdig prosjekt i august 2025, og om det var noe som kunne minne om den modernistiske Osloskolen i norsk arkitektur, så var det carporten, med umalt treverk og fokus på synlig konstruksjon. Når jeg blir tilsendt bilder i ettertid er treverket imidlertid malt hvitt.

Man slår kanskje også hull på myten om at transformasjon nødvendigvis betyr miljøvennlig. At det er mer bærekraftig å gi gamle bygninger et nytt indre enn å rive hele skiten og bygge nytt, er i vår tid blitt et mantra, og det sier seg like selvfølgelig selv. Likevel kan ikke transformasjonsaspektet i Nettas hus-prosjektet føres på noen slik bærekraftskonto. Her er det blitt sprengt ut i tonnevis og det er pøst på med betong. 

Om det hele egentlig funker, om dette er god arkitektur, er vanskelig å si, og kanskje er det også hinsides poenget. Det holder å konstatere at det at dette i det hele tatt er tenkt, tegnet og bygget, som et uttrykk for norsk arkitektur i vår tid, er et ubestridt forfriskende gode.

Situasjonsplan av en resort med fire bygninger, arkitekt tegning.

Situasjonsplan.

Illustrasjon: Kastler Skjeseth Architects
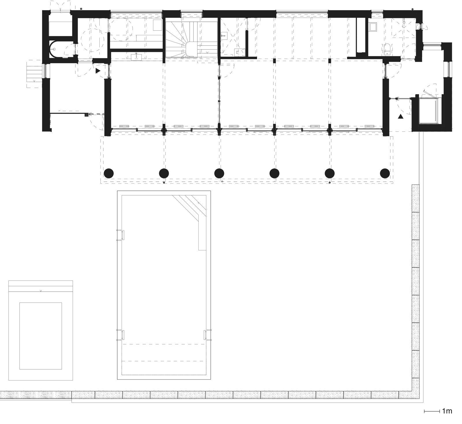
Plan av hovedhus på resort, arkitekt tegning.

Plan, hovedhus.

Illustrasjon: Kastler Skjeseth Architects
Plan av sportsbygg på resort, arkitekt tegning.

Plan, sportsbygg.

Illustrasjon: Kastler Skjeseth Architects
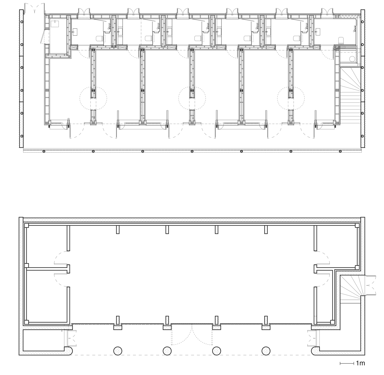
To planer av et anneks på resort, arkitekt tegning.

Plan, anneks.

Illustrasjon: Kastler Skjeseth Architects
Plan av carport på resort, arkitekt tegning.

Plan, carport.

Illustrasjon: Kastler Skjeseth Architects
Foto av resort med hvitmalt bygg, store søyler, badebasseng og trær i bakgrunnen.
Foto: Max Creasy, Erlend Skjeseth, Louis Gervais