Klinikk- og protonbygget Radiumhospitalet Oslo

Arkitekter

  • AART Architects AS

  • Henning Larsen Architects

  • Momentum Arkitekter AS

Oversiktsillustrasjon av klinikk- og protonbygget ved Radiumhospitalet.

Bygget er utformet med tanke på pasienters og ansattes trivsel, og en av utfordringene har vært å bringe lys og luft inn i et svært kompakt anlegg.

Det nye bygget er en utvidelse og fornyelse av Radiumhospitalet som omfatter nye sengeavdelinger, undersøkelsesog behandlingsavdelinger, radiologi, operasjon, samt protonterapi. Protonstråling av kreft er en ny og mer skånsom behandlingsmetode. I tillegg ny adkomstplass og vestibyle med forbindelse til eksisterende bygg.

Med det nye bygget er store deler av den eldre bebyggelsen langs Mærradalen fraflyttet og ikke lenger i bruk. Det nye bygget er plassert mellom og tett inn til eksisterende sykehusbygg. Tomten er trang og med vanskelige grunnforhold.

Arkitekt
  • AART Architects AS
  • Henning Larsen Architects
  • Momentum Arkitekter AS
Interiørarkitekt
  • Momentum Arkitekter AS
Landskapsarkitekt
  • Norconsult AS
  • Henning Larsen Architects
Oppdragsgiver
  • Helse Sør-Øst RHF, Prosjekt- og byggeledelse Sykehusbygg HF
Bruttoareal
  • 44000 kvm.
Ferdigstilt
  • 2024
Arkitekt medarbeidere
  • Momentum Arkitekter AS: Michael Ramm Østgaard, sivilark. (prosjekteringsleder for prosjekteringsgruppen); Truels Wissneth, Master i arkitektur, (disiplinleder arkitekt). Henning Larsen Architects AS: Niels Fuglsang (disiplinleder arkitekt); Birte Bæk, BIM-manager.
  • AART Architects AS: Anne Underhaug, sivilark. (disiplinleder arkitekt funksjon)
Interiørarkitekt medarbeidere
  • v/ Reinhold Zirkelbach, interiørark. Dipl. Ing.
Landskapsarkitekt medarbeidere
  • Jens Beckstrøm, Master i landskap ark.
  • Dennis Holm Pedersen, Master i landskapsark.
Konsulenter
  • Norconsult AS
Adresse
Ullernchausseen 70, Oslo
Kostnader
  • 6 milliarder NOK (2025), inkl. utstyr og moms

Grunnlaget for oppdraget er skisseprosjekt utført av henholdsvis Link Arkitekter og Arkitema. Oppdraget startet med verifikasjon med påfølgende revisjon av skisseprosjektet og alle videre prosjektfaser til ferdig bygg.

Arkitektgruppen har gjennomført prosjektet som ett team i en felles avtale med Norconsult, som har vært kontraktspart med oppdragsgiver og hatt ansvaret for alle tekniske fag.

Strålebunkerne for protonterapi er plassert mot Ring 3, mens sykehusets ulike funksjoner, klinikker og sengeavdelinger er plassert mot nord. En sentral glassgågate over fire etasjer sikrer forbindelse mellom Noreveien og Mærradalen, og gir tilgang til alle pasientrettede funksjoner.

Bygget er utformet med tanke på pasienters og ansattes trivsel, og en av utfordringene har vært å bringe lys og luft inn i et svært kompakt anlegg. Dette er blant annet gjort ved å etablere to utvendige atrier inne i bygningsmassen.

Sammen med interiørkonseptet, som bruker farger og motiver basert på temaene "skog", "fjell" og "hav", gir dette et humant og vennlig uttrykk som skal balansere de høyteknologiske medisinske behandlingsmetodene. 

Aksonometrisk oversikts illustrasjon av de ulike funkajonene i klinikk- og protonbygget Radiumhospitalet. Arkitekt diagram.

Illustrasjon, bygg.

Illustrasjon: AART Architects AS, Henning Larsen Architects AS, Momentum Arkitekter AS
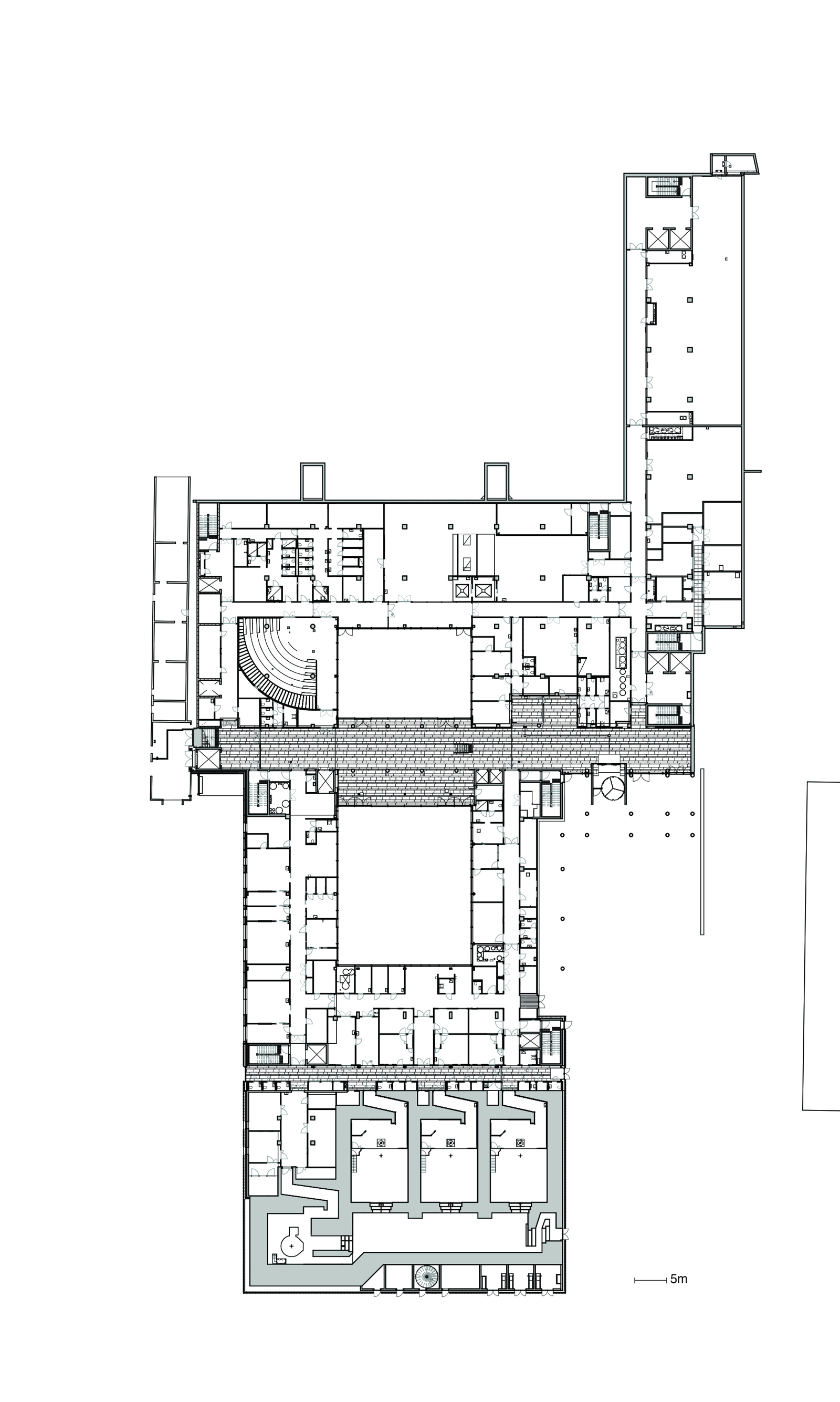
Plantegning av underetasjen på Klinikk- og protonbygget Radiumhospitalet. Arkitekt tegning.

Plan, U1. etg

Illustrasjon: AART Architects AS, Henning Larsen Architects AS, Momentum Arkitekter AS
Plantegning av tredje etasje på Klinikk- og protonbygget Radiumhospitalet. Arkitekt tegning.

Plan, 3. etg

Illustrasjon: AART Architects, Henning Larsen Architects, Momentum Arkitekter
Oversiktsillustrasjon av klinikk- og protonbygget ved Radiumhospitalet.

Fra venstre; det gamle sykehuset, nytt bygg, Forskningsbygget, Oslo Cancer Cluster

Illustrasjon: AART Architects AS, Henning Larsen Architects AS, Momentum Arkitekter AS