
Redd Barnas nye hovedkontor i HasleTre setter en viktig standard for hvordan vi tilnærmer oss innsiden av bygningene våre de neste årene.
Av og til dukker det opp nye bygg hvor det er tydelig at alle involverte har jobbet hardt mot et felles mål om å bygge et godt sted å være. Et sted hvor det hele henger sømløst sammen fra utside til innside. Det nye hovedkontoret til Redd Barna i Norge stod klart i januar 2023 og bærer preg av å være et hus som tar mennesket, klima og miljø på alvor. Her har ombruk, både i nåtiden og fremtiden vært et sentralt tema.
- I-d. Interiørarkitektur og design AS
- Romlaboratoriet AS
- Oslotre
- Grindaker AS
- 3000 kvm.
- Redd Barna (Romlaboratoriet)
- Høegh Eiendom/AF Eiendom (I-d.)
- 2023
- Kjersti Hoel Johnson interiørarkitekt MNIL (Romlaboratoriet)
- Malin Skjelland Eriksen interiørarkitekt MNIL (Romlaboratoriet)
- Gard Flydal Rorgemoen interiørarkitekt MNIL (Romlaboratoriet)
- Silje Brænde interiørarkitekt MNIL (I-d.)
- Annethe Thorsrud interiørarkitekt MNIL (I-d.)
- Are Fredrik Berg interiørarkitekt MNIL (I-d.)
- Jørgen Tycho, Arkitekt MNAL
- Moritz Groba, Dipl. Ing. Architektur
- Salas Montes Mañas, sivilarkitekt
- Kristine Karklina, m.arch
- Katrin Wilde-Sampaio, Dipl. Ing. Architektur
- Jon Danielsen Aarhus, sivilarkitekt MNAL
- Olivia Gragnon, CAD ingeniør
- Ingrid Klingberg landskapsarkitekt MNLA
- Denise Ines Peters landskapsarkitekt MNLA
På byggets premisser
Bygget, HasleTre, er utelukkende konstruert i treverk og er demonterbart slik at materialene kan brukes om igjen. Byggherre, Höegh Eiendom og AF Eiendom, kom til arkitektene i Oslotre med en svært åpen bestilling: bygget skulle være av tre, sirkulært og grensesprengende. Da det ble klart at Redd Barna var den fremtidige leietakeren beskriver de involverte det som en prosess der Redd Barna gikk inn i prosjektet på byggets premisser.
Et interessant samarbeid oppstod mellom arkitektene i Oslotre sammen med byggherres interiørarkitekter i I-d. interiørarkitektur & design AS og Redd Barnas interiørarkitekter i Romlaboratoriet AS.* Redd Barna hadde satt seg som mål å ombruke så mye som mulig av kontorinnredningen fra eksisterende lokaler. De ønsket en prosess som var nøysom både økonomisk og klimamessig. I tillegg ønsket de at flyttingen skulle ha minst mulig påvirkning på klima og at det nye bygget med innredning skulle ha en viss fleksibilitet.
Huset består av fire etasjer over kjeller. Redd Barna leier de tre øverste, kjeller, samt to tredjedeler av første etasje. Det huser i dag deres drøyt 200 ansatte i Oslo. Interiørets konsept er utviklet i tråd med arkitekturen hvor Redd Barnas verdier var et sentralt utgangspunkt. I dette lå særlig nøysomheten, hvor Romlaboratoriet beskriver det som et designkonsept av kontrollerte tilfeldigheter. De skulle skape noe nytt med det Redd Barna allerede hadde.
Et viktig premiss for ombruk av den løse innredningen har vært at arkitekturen og den faste innredningen har blitt det som knytter det hele sammen. Hvor for eksempel materialer og farger, men også funksjoner utfyller hverandre. Dette oppleves som vellykket. Det tverrfaglige samarbeidet har gitt et rikt interiør hvor arkitekturen, fast og løs innredning glir over i hverandre og danner en helhet. Helheten har et overbevisende uttrykk av det uperfekte, alt passer kanskje ikke like godt sammen, men fungerer likevel og har et helt særegent uttrykk.

Alt passer kanskje ikke like godt sammen, men fungerer likevel og har et helt særegent uttrykk, skriver artikkelforfatteren.
Foto: Dag SandvenNaturen på innsiden
Den amerikanske biologen Edward Wilson populariserte begrepet biofilia i boken med samme navn som kom ut i 1984. Biofiliske designprinsipper har etterhvert fått mye oppmerksomhet og har blant annet blitt inkludert i den nyeste BREEAM-NOR sertifiseringen. HasleTre er BREEAM NOR Excellent sertifisert.
Biofilia betyr kjærlighet til naturen og alt levende. Wilson mente at mennesket har en sterk iboende trang til å omgås natur. Han hevdet at dette kom av hvordan sansene våre har utviklet seg i nært samspill med naturen etterhvert som vi har lært oss å overleve i den. De fleste av oss lever store deler av livet vårt innendørs. Dersom Wilson har rett, er det derfor et viktig poeng å bringe naturen inn i utviklingen av arkitekturens innside.
Eksponerte vegger og konstruksjon i massivtre danner rammen om interiøret i hele HasleTre. Den utstrakte bruken av tre spiller ikke bare på synssansen, men også lukt, hørsel og berøring. Dette blir tydelig allerede i det man trer over dørstokken. Treverket omfavner deg og alle sansene dine med det samme. Arkitektene har utforsket potensialet i tre mot tre forbindelser, hvor det meste er festet med trespiker og/eller tyngdekraft. Kravet til at treverket skulle være demonterbart, har gjort at det er brukt så lite bearbeidet tre som mulig og det er i utstrakt grad unngått lim og skum.
Oslotre har også beskrevet et grått geitehårsteppe som er med på å bidra til et godt inneklima. Geitehår inneholder naturlig keratin som renser luften. Disse overordnede valgene gir en varm og lun stemning, der interiørarkitektene har kunnet spille videre på de sanselige kvalitetene.
Levende kontorlandskap
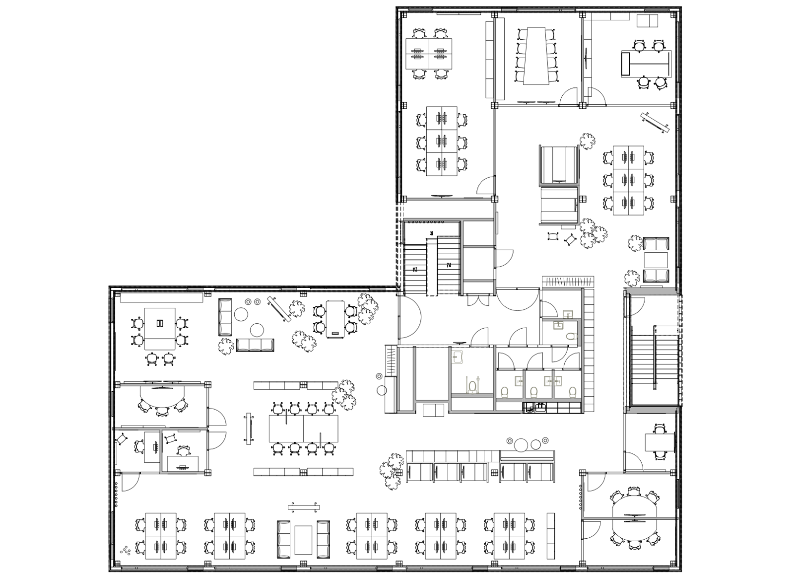
Redd Barna bestemte seg tidlig for et aktivitetsbasert arbeidsplasskonsept. En demokratisering og flerbruk av areal, der alle deler på de tilgjengelige tjenestene betyr at hele huset og alle dets områder tas i bruk kontinuerlig. I tillegg oppstår tilfeldige møter som bidrar til internt samarbeid på tvers av ulike avdelinger. Kontorlandskapet består av arbeidsplasser, større bord for samarbeid og faste båser for workshops og uformelle møter, samt lukkede møte- og videorom.
Planløsningen virker godt bearbeidet, samtidig som den er fleksibel med åpne arealer. Arbeidsmiljøet er dynamisk med ulike sittemuligheter som muliggjør mange ulike arbeidssituasjoner. Landskapet har god akustikk som bidrar til at de områdene hvor det legges til rette for prat og samarbeid ikke oppleves som støyende.
Et av punktene på ønskelisten til Redd Barna var en åpen første etasje hvor de kunne invitere inn publikum og være synlig på gateplan. Byggets plassering, med inngang mot torget på nordsiden og store vinduer ut mot gateplan, gjør at man rekker å få innblikk i aktiviteten som skjer i første etasje før man går inn døren. Etasjen som inneholder resepsjon og kantine/allrom er åpen for publikum og det inviteres til at barn kan leke og lære i arealene rundt resepsjonen.
Allrommet er enkelt innredet med løse bord og stoler og barbord langs fasaden. En enkel tribune danner overgangen mellom publikumsområdene og kantinen. Her er det også brukt gardiner i flere situasjoner som bidrar til romskiller og mykhet i den ellers harde glassfasaden. Her er det mulig å samle alle de ansatte, spise sammen, ha presentasjoner eller andre sammenkomster ved å ommøblere rommet. Plasseringen av kjøkkenet og tribunen bidrar til at det dannes noen faste holdepunkter i rommet slik at det fremstår ryddig og lett å orientere seg i.
I den åpne planløsningen, er faste båser for møter og avveksling med på å dele etasjene inn i mindre soner. Båsene ble levert av byggherre som fast inventar og er designet av I-d. Her er demonterbarheten i bygget tatt med videre inn i interiøret på en spennende måte. De er åpne på den ene siden og har vegger og tak med polstrede sittebenker og bord. Både båsene og møblene er fleksible og kan enkelt demonteres.
Det er også lagt til rette for at polstrede flater kan byttes ut ved behov, uten å måtte bytte hele møbelet. Det samme gjelder bordplatene som er montert i slisser. Garderober og sittebenker har også vært en leveranse fra byggherre. Disse er lasert i ulike toner. En kan sette spørsmålstegn ved hvor tidløse fargevalgene er, men de fungerer godt i samsvar med treverket. Det er tydelig at I-d. har gjort en grundig undersøkelse av hvordan de ulike fargene står sammen som en helhet. Og fargene bidrar til at det ombrukte løse inventaret knyttes sammen med helheten.

I allrommet danner en enkel tribune overgangen mellom publikumsområdene og kantinen. Her er det mulig å samle alle de ansatte, spise sammen, ha presentasjoner eller andre sammenkomster ved å ommøblere rommet.
Foto: Einar AslaksenSosial bærekraft
Det eksisterende interiøret i Redd Barnas gamle lokaler var preget av sort, hvitt og rødt. Kontorpulter og kontorstoler ble ombrukt. Pultene ble kortet ned så mye understellet tillot, til 120cm bredde. Stolene ble sendt på overhaling og reparasjon og har fått ny-garanti på to år. Skilleveggene rundt kontorpultene, skiller seg ut og er både et taktilt og sanselig innslag.
Romlaboratoriet AS og leverandøren Elementa har samarbeidet med designeren Johan Ørbeck Aase i å videreutvikle konseptet hans Feltpix – en stålramme med metallgrid som flettes med ullfilt. Ullen kommer fra bakdelen av sauen og ville vanligvis vært ansett som avfall i ullproduksjonen. Flettingen av ullen ble utført av ansatte hos Byrg kompetanse på Sykkylven. Bedriften er et inkluderende arbeidstiltak for mennesker i utenforskap og valget henviser til Redd Barnas fokus på sosial bærekraft.
Ullen er ubehandlet og fungerer både svært godt akustisk, men også visuelt med å gi karakter til rommet og møblene som er beholdt i sort og hvitt. De snakker også godt sammen med det grå ullteppet og tar opp tråden fra byggets faste deler. Uttrykket til skilleveggene er tatt videre i mobile romdelere og skapfronter. Dette fungerer som et gjenkjennbart og karakteristisk element gjennom alle kontoretasjene.

Møbleringsplan.
Variert møblering
De øvrige løse møblene varierer mellom ombruk og nyinnkjøp. Noen er til og med eldre klassikere. Dette bidrar til å gi et variert uttrykk, som ikke er polert, men har en egenart og sjarm. Tanken om å ta vare på det man har og verdien i det uperfekte kommer tydelig frem her. Av møbler som er innkjøpt for prosjektet har Romlaboratoriet hatt fokus på å kjøpe lagervarer, utstillingsmodeller, supplere med større bordplater på eksisterende møtebord og ellers kjøpt så lite nytt som mulig.
De to interiørarkitektkontorene har testet ut nye materialer som TRIBO-plater (et sandwich-materiale med svært lav egenvekt) i ulike typer bord. Her har demonterbarheten blitt utforsket videre og delene er satt sammen ved å låse dem til hverandre uten spiker og lim.
Tankegangen rundt anskaffelser og å gjenbruke så mye som mulig har også gitt karakter til de ulike tekstilelementene rundt i interiøret. Tekstildesignfirmaet Gudrun Design ble kontaktet for overskuddsmateriale og dette utgjør nå puter i ulike sofaer. I tillegg har designkollektivet Studio Kulefisk designet og produsert nye sittebenker av gamle ståbord i stavlimt heltre eik, med et tekstiltrukket sete, også disse i stoff fra Gudrun Design. De titter frem fra tid til annen når man beveger seg rundt i bygget og har en egenart. Et godt eksempel på at det bør være mulig å gjøre noe annet med gode materialer enn å kvitte seg med dem.

HasleTre på Hasle i Oslo, er utelukkende konstruert i treverk og er demonterbart slik at materialene kan brukes om igjen.
Foto: Einar AslaksenBarn og unge
Et viktig aspekt i prosjektet var ambisjonen om å involvere barn og samarbeid med skoler for å fremme barn og ungdoms perspektiv på sine omgivelser. Barn fra Hasle barneskole i Oslo har bidratt med utsmykning til ulike arealer i bygget. Elever ved Edvard Munch videregående skole har blant annet laget flere lampe-installasjoner. Lampene fungerer som et overraskende håndverksmessig innslag i interiøret og skaper soner i det åpne landskapet.
Elevene har også bidratt med å printe og montere foliering. Denne var et resultat av brukerinvolvering med spørsmål om hva som var Redd Barnas DNA, hvor svaret var FNs barnekonvensjon. Det grafiske elementet er med på å sette fokus på Redd Barnas arbeid og forståelse for at barns rettigheter står i sentrum av organisasjonen.
Alt i alt er Redd Barnas kontor i HasleTre et godt eksempel på hvordan tverrfaglig samarbeid og forståelse for hverandres fagdisipliner kan bidra til å skape en større helhet. Et sted hvor både sosial og miljømessig bærekraft er innlemmet i flere lag og hvor menneskets behov ivaretas på en omsorgsfull måte. Det er lov å håpe at dette blir den nye normalen.
* I-d. Interiørarkitektur & design har hatt ansvar for rombehandling, kravspesifikasjon, fast innredning og leietakertilpasninger, mens Romlaboratoriet AS har hatt ansvar for brukerprosesser, arbeidsplasskonsept og løs innredning.