Villa Schjøtt Bergen

Arkitekter

  • Geir Grung

  • Michelsens AS

Foto av skyvedører i glass utenfra, stål søyle i forgrunnen, stue innenfor døren.

Geir Grungs renoverte Villa Schjøtt er på markedet for 40 millioner kroner. Hvilken historie forteller huset nå?

Arkitekt og bergenser Geir Grung er kjent for sin både utradisjonelle og eksperimenterende arkitektur fra 1940- og 50-tallet. Nå har den Bergens-baserte praksisen Michelsens stått for en storstilt oppgradering av villaen med eiere og etterfølgere tett involvert, og de kan friste med luksuriøse tillegg som spa, to kjøkken og kinorom. Nye eiere kan flytte rett inn i et hjem som nok passer best for dem som har god greie på arkitektur. Og på vin.

Arkitekt
  • Geir Grung
  • Sven Gundersen
Interiørarkitekt
  • Michelsens AS
Oppdragsgiver
  • Milu as
Bruttoareal
  • 398 kvm.
Ferdigstilt
  • 2023
Arkitekt medarbeidere
  • Geir Grung
  • Bistand til søknad om endring av fasade, endring av areal (innlemmelse av bassengareal/ny trapp), oppføring av carport: Arkitekt Sven Gundersen
Interiørarkitekt medarbeidere
  • Nina Michelsen, interiørark.møbeldesigner MNIL
  • Daniel Levin, produktdesigner/koordinering
  • Simonas Abromavicius, teknisk tegner/produksjon
Konsulenter
  • Morten Michelsen/Michelsens: byggeledelse/prosjektkoordinator
  • TRB AS: utført energi beregning, samt prosjektert ventilasjon
  • Bjarte Fyllingen AS: utført prosjekterende byggeteknikk;
  • A-Stab AS: utført byggeplass kontroll, herunder våtromsertifisering
Adresse
Haakon Sæthresveg 23, Bergen
Ferdigstilt
  • Ferdigstilt i 1968 og totalrenovert fra 2021 til 2023
Foto
  • Silje Chantel Johnsen og
  • Terje Arntsen
Fasade foto av villa i ulike vinkler i betong og mørkt treverk, og store glassflater.

Designerne ønsket å komplimentere de ytre elementene og forene husets utvendige karakter gjennom bruk av blant annet betong, glass og metall.

Foto: Terje Arntsen

Paradis på bergensk

I salgsprospektet blir Villa Schjøtt beskrevet som en «komfortabel og moderne drømmebolig på Tveiterås». For de som ikke kjenner til Bergen, snakker vi om en adresse på fjonge Paradis med panoramautsikt, omgitt av grønne omgivelser kun ti minutter unna Bergen sentrum.

Huset ble bygd for arkitektens svoger på slutten av 1960-tallet. Helge Schjøtt var en levemann som kombinerte business og politikk. Etter hans bortgang i 2020, sto barna overfor valget om å overta villaen eller selge.

– Vi fikk en henvendelse fra en megler som mente at dette var et «Michelsens-prosjekt». Eierne ville ikke flippe huset og selge til høystbydende, men ønsket full oppgradering både teknisk og personlig.

Det forteller interiørarkitekt MNIL, Nina Michelsen, som vokste opp kun et steinkast unna villaen, som hun beundret med barneøyne. I dag driver hun Michelsens sammen med sin mann og kollega, et kontor som representerer snekkerarbeid, design og produksjon, og har restaurert en rekke villaer gjennom sin virksomhet.

Interiør foto av stue med store glassflater i alle vegger, sofa, lenestoler i gult.

Såpevasket eik, integrert ledbelysning og hvite flater preger det nye designkonseptet til Michelsens.

Foto: Terje Arntsen

Festhus

Hovedetasjen i Villa Schjøtt inneholder hovedsoverom tilknyttet bad, et bibliotek, garderobe, samt flere oppholdsrom. En elegant trapp fører deg ned til et usedvanlig romslig flerbruksrom, der lyset strekker seg tvers gjennom bygningsvolumet og ned til underetasjen. Her finner du kino, spa, vaskerom, tre soverom med tilhørende bad og et fire meter langt kjøkken og et integrert vinskap med plass til omtrent 60 av dine beste viner.

– De nye eierne bør være glad i vin?

– Hehe, ja, de bør vel være av typen livsnytere. I tillegg må de jo være glade i arkitektur og kultur, da dette er et tidligere festhus som ble brukt til samlinger og festligheter til både familie og næringsliv. På mange måter hadde vi lyst til å beholde den atmosfæren i bygget, til tross for at vi har gjort en del grep, forteller Michelsen.

Interiør foto av soverom, kommode med speil i front, seng med store vinduer fremfor i bakgrunnen.

Boligens hovedsoverom har eget privat bad og plassbygget garderobeinnredning i eik med nedsenket himling for spot-belysning.

Foto: Terje Arntsen
Interiør foto av baderom med glass i alle vegger, badekar og lang benk med vask.

Master-bedroom med utsikt over Paradis.

Foto: Terje Arntsen

Nedtonet designkonsept

Før renoveringen var Schjøtts hjem et sjarmerende virvar av tegl, metall og redwood i gulv, kledning og himling. Der flere interiørarkitekter kanskje hadde satt kloa i det eksisterende treverket, valgte designerne heller et annet grep for det nye konseptet.

– Hvor starter man når man skal renovere et bygg med slik karakter?

– Vi har lest, lyttet til familiens innspill og historier og forsøkt å fange og fusjonere Grungs modighet inn i vår tid. Det ene hensynet var å jobbe med investor, prosess og budsjett – og det andre var mot byantikvar for å forsikre oss om at vi gjorde de rette grepene, forteller Michelsen.

– Vi startet i grunn med tak og varme, da det var mest prekært å avklare. I interiøret har fokuset vært på solide kvaliteter og godt håndverk.

I det nye designkonseptet har den tradisjonelle stilen fra villaens tidligere eier veket plass for innovative løsninger som skyvedører i såpevasket eik, integrert LED-belysning, speil, glass og rene, hvite flater. Designerne ønsket heller å komplimentere de ytre elementene og forene husets utvendige karakter gjennom bruk av blant annet betong, glass, metall, eik, trefinér og speil.

– Hvordan har dere jobbet med bærekraft i prosjektet?

– Egentlig var det en utfordring, da boligen bestod mye av treslag som teak og redwood, som er materialer man nødvendigvis ikke ønsker å bruke. Da vi begynte å se på planløsningen og mulige endringer, visste vi at vi hadde manko på materiale, og ingen av oss kunne forsvare å bestille og gjøre noe ut ifra teaken, forteller Michelsen.

– Men kledningen i treverk, er ikke dette fullt brukelige materialer etter demontering?

– Jeg vet at materialene som kunne gjenbrukes ble ivaretatt – og faktisk ble det levert til en i familien som ønsket det i sitt prosjekt. Lite gikk «til spille», men utfordringen for bevaring av materialer er ofte lim eller monteringsmåte for gjenbruk. Dette er jo noe som er i fokus i dag, både for bærekraftig materialoppfriskning eller endring, og riktig monteringsprodukt for nypåførte overflater, svarer Michelsen.

Et av materialene Michelsen sikter til er teakgulvet, som tidligere var et skipsgulv som Schjøtt kjøpte fra seilskipet Statsraad Lehmkuhl. Gulvet, blir jeg fortalt, er nå på lager og brukt videre i et annet prosjekt.

Interiør foto av sirkeltrapp med rundt takvindu som slipper inn lys og svart midtstolpe.

Lyser strekker seg flere steder tvers gjennom bygningsvolumet og ned til underetasjen.

Foto: Terje Arntsen

Opprinnelig planløsning

Hovedkonstruksjonen i Villa Schjøtt står trofast mot sin opprinnelige form fra byggeåret. Unntakene er den nyinstallerte trappen og omformingen av det tidligere innendørsbassenget, som er transformert til ekstra boareal. Mindre vegger har blitt tilføyd for å lage en spa-løsning i underetasjen, og en døråpning har blitt utvidet for å bringe inn mer naturlig lys i underetasjen.

Villa Schjøtt inneholder flere komplekse vinkler som skaper en unik romfølelse. Kjøkkenet i hovedetasjen har blitt flyttet ut i stuen, og har gjennomgått en utvidelse med en geometrisk kjøkkenøy med glass. Strategisk plassert for å maksimere arealet som flyter sømløst over i spisestuen, som er tydelig avgrenset fra loungeområdet ved hjelp av knekken i byggkonstruksjonen.

I hovedetasjen dominerer også et fremtredende ildsted som fortsatt står som et sentralt element, med en mindre variant også i underetasjen. Himlingen tjener praktiske formål for ventilasjon uten å gripe for mye inn i original betonghimling i underetasjen, og gulvet i hele boligen har fått vannbåren varme for å møte dagens krav. 

Snittegning av vill med ulike vinkler, håndtegnet, Arkitekt tegning.

Originaltegning, 1967.

Illustrasjon: Geir Grung
Plantegning av vill med ulike vinkler, håndtegnet, Arkitekt tegning.

Originaltegning, 1967.

Illustrasjon: Geir Grung

Hvordan designe for fremtiden

Villa Schjøtt er et viktig bidrag i norsk arkitekturhistorie. I arbeidet med rehabiliteringen av eldre arkitektur, er det flere interessante spørsmål man kan stille seg: hvordan designer man for en fremtidig kjøper? Skal det være «nøytralt» og noe «alle» liker? Og hvordan vil vi se tilbake på dette om 50 år? Svarene er nok delte, men spørsmålene er viktige når vi skal finne ut hvordan vi jobber med interiørarkitektur i dag.

Interiør foto av oppholdsrom med flere sittegrupper og en kjøkkenbenk bakerst i rommet.

Gulvteppe fra Bolon flyter gjennom underetasjen bestående av eik og hvite flater.

Foto: Terje Arntsen
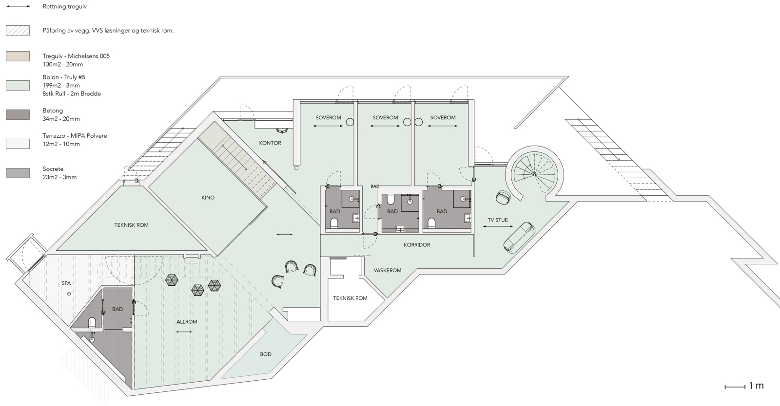
Plantegning av villa som har mange ulike vinkler og viser materialer. Interiør arkitekt tegning.

Gulvplan, 1. etasje.

Illustrasjon: Michelsens
Plantegning av villa som har mange ulike vinkler og viser materialer. Interiør arkitekt tegning.

Gulvplan, 2. etasje.

Illustrasjon: Michelsens