De siste ti årene har Küng Holzbau utviklet et eget byggesystem i heltre, Holzpur («rent tre»). Holzpur er 20 cm tykke veggelementer som består av syv lag med treplanker. Treverket kommer fra trær som blir felt ved juletider før nymånen, når det nesten ikke er vann igjen i trærne. Dette gir mindre sjanse for krymping og angrep fra skadegjørere.
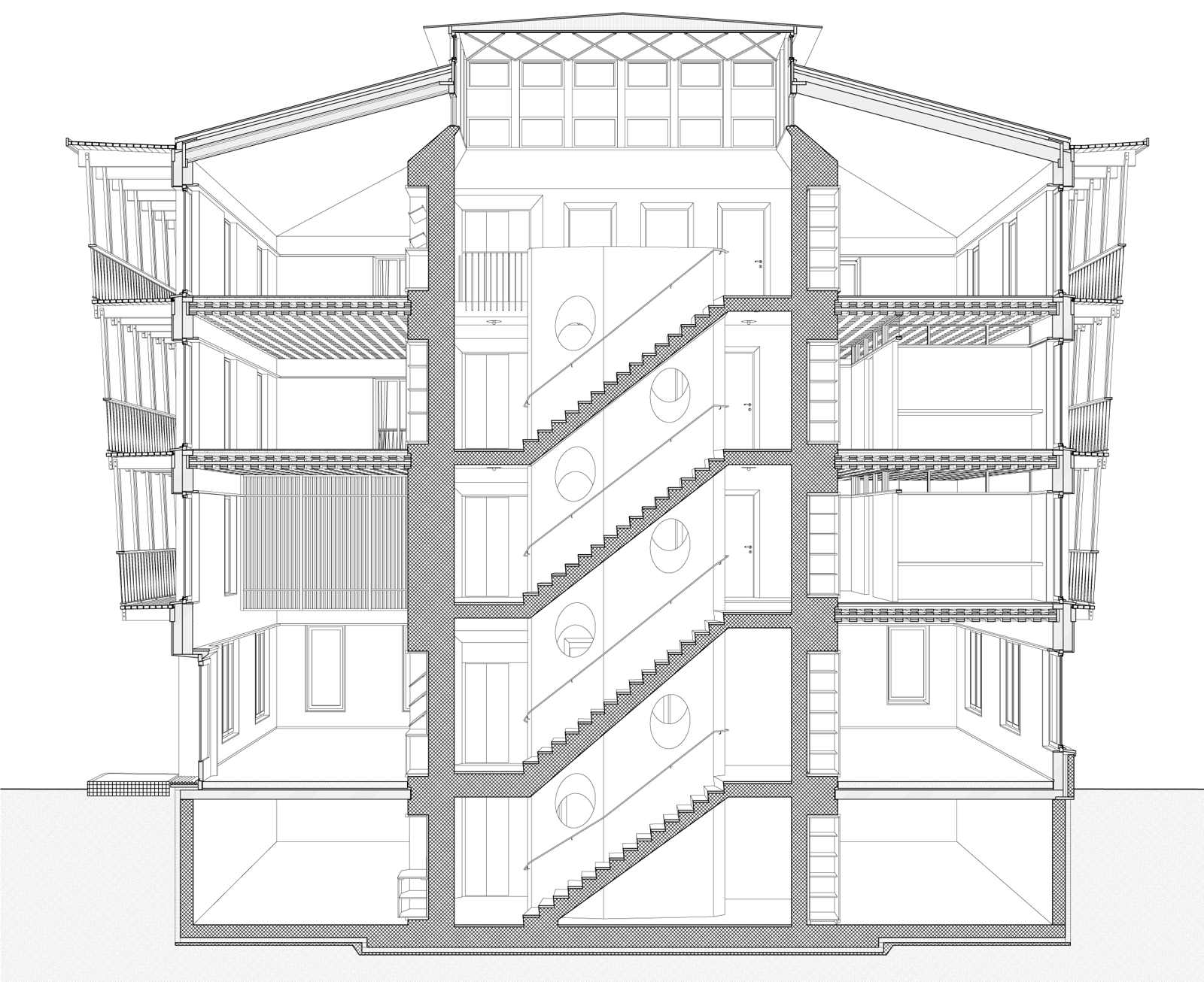
Firmaets nye hovedkvarterer er tegnet av Seiler Linhart arkitekter, som har samarbeidet tett med Küng Holzbau siden 2009. Bygget demonstrerer bruken av firmaets Holzpurmateriale. Veggene består av to Holzpur-elementer, med vindsperre i midten, noe som gir en tykkelse på totalt cirka 40 cm. Nærmest kvadratisk og over fire etasjer, rommer prosjektet kontorer for 20 ingeniører, møterom, kantine og utstillingslokaler. De utvendige balkongene minner om sveitsisk byggetradisjon og gir skygge.
Foajeen strekker seg over to etasjer, med resepsjon til høyre og møtebord til venstre. Byggets kjerne i betong binder etasjene sammen med trapper og heis og er utformet som en skulptur.
- Seiler Linhart Architekten
- Küng Holzbau AG
- 1144 kvm.
- 2020
- Partner: Patrik Seiler (Dipl. Architekt FH SIA BSA), Søren Linhart (Dipl. Architekt SIA BSA SWB)
- Project Manager: Raphael Wiprächtiger (Architekt MA FHZ)
- 3.5 Mio CHF ekskl. mva
- Rasmus Norlander

Kjernen er i betong, ellers er Küng Holzbau svært gjennomført som trearkitektur.
Foto: Rasmus Norlander
Fasadene har akkurat det detaljeringsnivået vi forbinder med sveitsisk byggeskikk.
Foto: Rasmus Norlander
Lettheten i treet og tyngden i betongen skaper kontrast i formspråket, men er også uttrykk for logisk fordeling av materialer gitt deres iboende egenskaper.
Foto: Rasmus Norlander
Snitt.
Foto: Officebuilding Küng Holzbau, Alpnach
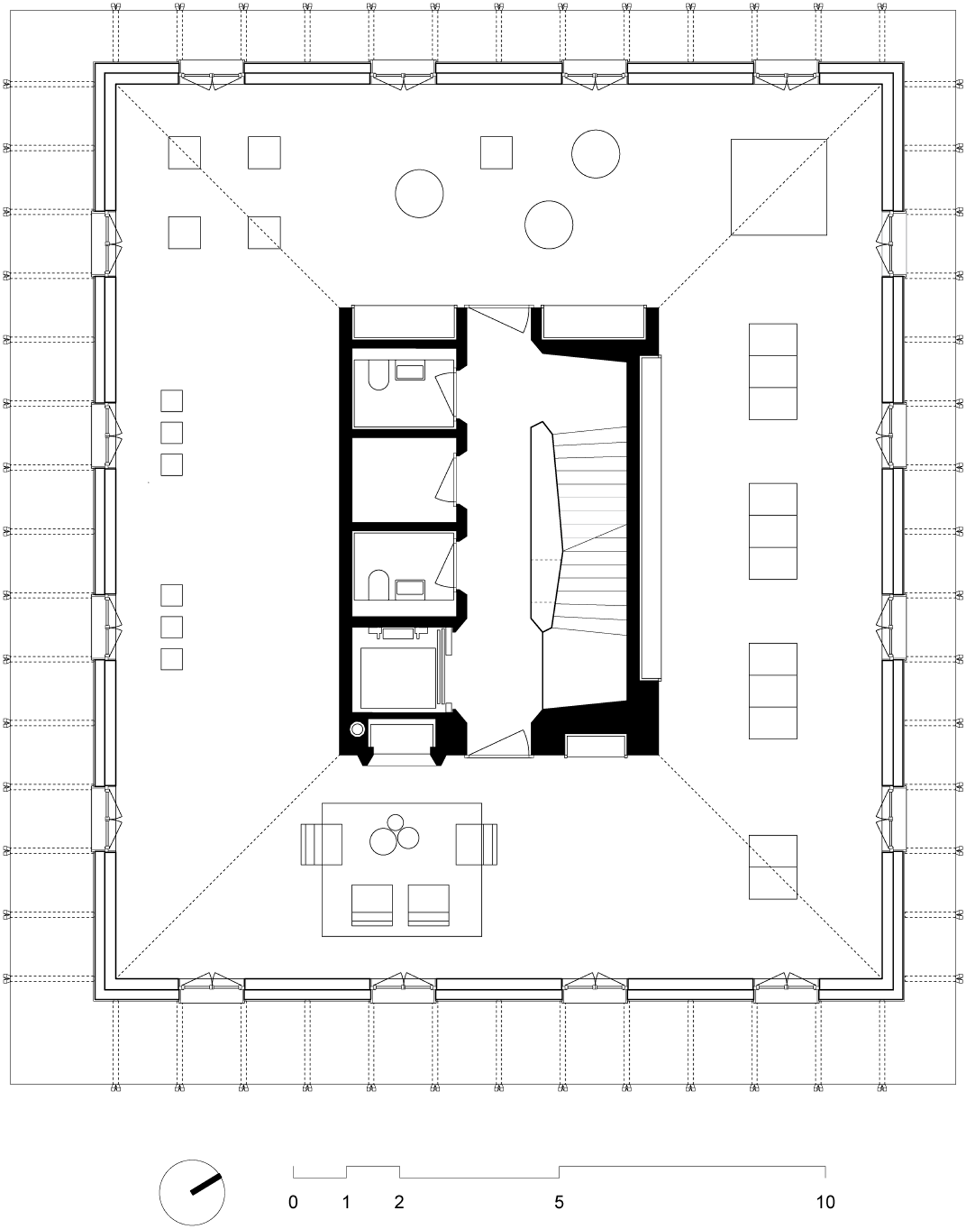
Plan, 1. etasje.
Foto: Officebuilding Küng Holzbau, Alpnach
Plan, 3. etasje.
Foto: Officebuilding Küng Holzbau, Alpnach