Rasteplass og servicebygg på Brunstranda Flakstad

Til å være et så gjennomtegnet prosjekt, blir det påfallende stor avstand fra papiret bygget er tegnet på, til den virkeligheten det befinner seg i.
Brunstranda har lenge vært et nøkkelstopp langs riksveien i Lofoten – en av de få tilrettelagte perlene langs den ellers slyngete E10 som utgjør ryggraden gjennom øygruppa. Like utenfor fiskeværet og kommunesenteret Ramberg i Flakstad kommune – flittig besøkt av turister om sommeren når sola aldri går ned, håpefulle nordlysjegere i vintermørket, og av lokalbefolkningen året rundt. Som fast bruker av plassen i snart åtte år, vil jeg si at den i likhet med hele Lofoten er et utvilsomt vakkert sted.
For til tross for navnet «Brunstranda» er den endeløse sandstranden her finkornet og hvit. Nærmeste nabo er «Lofoten Beach Camp» med telt- og campingplasser, surfeutleie og kurs. Gjennom området går det et felt med en sårbar naturtype klassifisert som svært viktig, en verdi som erosjonen stadig utfordrer. Tvers over veien finner vi et av de siste masseuttakene i kommunen, med det som ser ut som en dramatisk scene med hastig forlatte kraner og transportbelter, som ble stengt på grunn av en – bokstavelig talt – overhengende rasfare.

Inngangsparti under tak, med gummikledd wire som dørstoppere mot den kraftige vinden i området.
Foto: Johan Dehlin- Vatn Architecture
- Jørgen Tandberg Arkitekt MNAL
- Silje Myhre Amundsen (Statens vegvesen)
- Nasjonale Turistveger
- 70 kvm.
- 2023
- stud. Ark. Jelle Boone
- stud. ark. Trym Tafjord
- stud. Ark. Petter Elverum
- Arkitekt MNAL Jonas Løland
- Arkitekt MNAL Mathias Dedic
- Dr. techn Kristoffer Apeland AS
- Siv. Ing. Finn Erik Nilsen AS
- F.M. Haaland AS
- Aqila AS
- Ingeniørkontoret Ingenia AS
- Johan Dehlin
Et sted for lokalbefolkningen
I motsetning til en del andre turistveiprosjekter er denne rasteplassen et hyppig møtested også for fastboende, undertegnede inkludert – mye takket være surfe- og turmulighetene. Her treffer man naboer og tilfeldige bekjente til sporadiske møter, utflukter og før man kanskje havner på en og annen fest. Så lenge jeg kan huske satt det hver sommer en dame i det tidligere servicebygget og solgte vafler fra en slags provisorisk pop-up kiosk med uforutsigbare åpningstider.
Ulike konkurrenter strødde rundt sine sportsutstyr og tilbød alle slags friluftskurs i geriljastil på plenen. Alt var halv-profesjonelt, men utgjorde en sammensatt sosiokulturell gryte som hadde sin sjarm. Klassisk Lofoten.
Rasteplassen har i tillegg hatt en historie med ulike arkitekter som ikke har fått gjennomslag for sine konsepter. Også typisk Lofoten. Men våren 2022, rett før høysesongen, ble rasteplassen avsperret og stengt for publikum. Den skulle vise seg å være stengt i ett år, og sommeren 2023 sto avløseren av det tidligere slitne servicebygget klart – et splitter nytt bygg i hvit betong, «Brunstranda 2.0», tegnet av arkitektene Espen Vatn og Jørgen Tandberg.

Bygget sett fra innkjøringsområdet.
Foto: Johan DehlinUteområdene
Sett fra avstand står det nye bygget godt plassert som et objekt i landskapet, og fremstår box-fresh sammenlignet med diverse Hibas-toaletter som er plassert rundt omkring andre steder i kommunen. Lokalsamfunnet ble jo tatt med buksene nede av en internasjonal turistboom, og driter bokstavelig talt i estetikken når nøden kaller. Det bygger med andre ord opp en positiv forventning når man blinker seg ut fra E10 og inn ved Brunstranda.
Mitt umiddelbare inntrykk er at den oppgraderte rasteplassen er organisert på en god måte. Ikke de store omkalfatringene, men det føles likevel mye mer ryddig og oversiktlig enn tidligere. Personbiler henvises til nedsiden nærmest fjæra og større kjøretøy er adskilt på oppsiden, og sistnevnte ser ut til å ha tillatelse til å benytte seg av hviletidsparkering. Freidig i Lofot-kontekst, der villcamping er blitt en populær hobby.
Her kommer også en av styrkene til nybygget frem, nemlig at den som objekt har en veldig generell kvalitet i sin plassering. På en stappfull sommerdag blender de hvite sandstrendene inn i endeløse rekker av hvite bobiler som ellers ville parkert i hytt og vær. Slik fungerer bygget disiplinerende – noe de øvrige, hvite objektene på hjul kan stille seg bak når de kommer svingende inn på rasteplassen.
Overgangen fra parkeringsplass til naturområder er løst på en enkel og elegant måte. Man kunne fort ha blitt fristet til å støpe scener og podier i betong, men har i stedet valgt asfalt som gir minimale skader ved stormfloen som pisker inn og bryter opp. Store, flotte natursteiner er plassert rundt omkring og definerer grensesnittene.
Bilene stopper for steinene. Folk går ut av bilene. Folk stiller seg oppå steinene. Alle tar den samme selfien. På framsiden av servicebygget er det opparbeidet en liten plass i armert gress, med det jeg tolker som multifunksjonelle sitteplasser som skal tåle slitasje og avskjære eventuelle kjøretøy på ville veier. Vi har en del av det også. De runde podiene fungerer i praksis mer som avlastningsbord for ivrige fototurister med sine dyrebare, lange linser og påtrengende droner.
En etter en, rigger de opp for å ta et velkalkulert sniper-skudd av horisonten, det hele overstått på noen få strakser, før neste skarpskytter inntar plassen og tar livet av det samme byttet. Om og om igjen. Å plassere ut flere av de natursteinene i stedet, hadde vært mer tilgivelig.

Bærende gavlvegger som sandwichelementer i hvit, prikkhamret betong. Benk i syrefast stål mot havet. Terreng av grus og gressarmering.
Foto: Johan DehlinMøbleringen
Den lange metallbenken langs framsiden, med utsikt mot Hustinden og Skagsanden (stranda) er stram, minimal og ifølge prosjektbeskrivelsen en flott plass å tilbringe varme sommerdager på. Det er sant – men de dagene er det dessverre få av. Med alle utsparinger og åpninger i konstruksjonen over, er det mer eller mindre som å være under åpen himmel.
Jeg nynner på Leonard Cohen som synger at «there is a crack in everything – that’s how the light gets in», mens jeg vet at Lofoten er velsignet med like mye nedbør som vakkert lys. Akkurat her på Brunstranda, midt i vortexen mellom alle de geologiske forbindelsene i Norskehavet, Golfstrømmen og Vestfjorden, vil vindrosen vise at det sjeldent drypper ned – det pisker helst sideveis. Et sublimt sted for mennesker i møte med sin egen og vår herres natur.
Der jeg står og ser på benken denne januardagen, føler jeg ikke helt for å sette meg ned på det iskalde stålet, til tross for opphold i været. Jeg har allerede vært nødt til å skrape frontruta og børste snø av bilen før jeg kom hit. Mine tanker sporer av til et annet turistveiprosjekt i nabokommunen, «Skreda», der fellesnevneren er ugjestmilde materialvalg i møte med slitne rumpeballer. Jeg må anta at arkitektene også har besøkt dette. Kanskje var de der på en varm sommerdag?
Under utkragningen over vestveggen, der man kan stå og skue mot Lofotodden nasjonalpark, som på magisk vis bader i årets første sol etter mørketidens dvale – samme retning hvor solen et halvt år senere, som beskrevet av Hamsun i Pan, knapt synker ned i havet før den stiger opp igjen, rød, fornyet, som om den har vært nede og drukket – her er det plassert en strømboks.
En større utfordring med uteområdet er likevel stålkantene/ kantlistene som streker opp stien til og fra bygget. De kurvede linjene ser helt sikkert nydelige ut på papiret, men utover å tegne en flott komposisjon på arket er jeg usikker på hva de skal holde på plass eller definere. Vær, vind og sand hvisker ut linjene og etterlater i stedet lite synlige snublekanter i tynt, skarpt metall, der ender og skjøter fremstår like lite temmet og samarbeidsvillige som været for øvrig.
Flere steder har skjøtene gått opp, og stikker ut som de rene barberblader til skade for hundepoter og ivrige tær som vil sikre seg et ferieminne. Om vinteren ser jeg at de holder på plass vann og snø, som danner en sklie av blank-polert is som sender deg rett mot steinrøysen nedenfor. Morbide fantasier om hvordan man kan komme til skade her utspiller seg idet jeg, som alle andre på vinterstid, går en omvei rundt hele området.
Gjennomgående for uteområdet savner jeg et program som er bedre tilpasset helårsbruk. Mange av disse rasteplassene beskrives som om de ivaretar alle disse funksjonene, men jeg tar meg i å lete etter * der det står med liten skrift; kun når det er fint vær, i tidsrommet juni–august.
Om rasteplassene skal være mer enn bare et sted for å gjøre sitt fornødne sommerstid, behøves det tilrettelagte kroker som gir le for vinden og utkragninger som skjermer for regnet som pisker i ansiktet. Steder som oppmuntrer til å ta en pause eller å dra frem termokoppen, og som likevel lar deg ta del i villskapen rundt deg, mens kroppen slapper av.
Jeg savner egenskapene til gapahuken som er så kjært her i nord.

Oversiden av innerveggene er i glass og de prikkhamrede betongbjelkene strekker seg gjennom hele bygningen. Interiør i syrefast stål, møbel i hvit betong.
Foto: Johan DehlinBygget
Hva slags typologi er dette bygget? Min første tanke går til Fehns ikoniske takkonstruksjon av tynne betongbjelker i Venezia. Den hvite prikkhamrede betongen er en referanse til sandstranden like nedenfor. Og selv om det nok ikke var intensjonen, skaper servicebygget også assosiasjoner til de utallige hvite, høye bobilene med sine utkragede frontkupler og overheng. I møte med dette objektet på nært hold, er det liksom noe med proporsjonene som gjør at den føles mer fremmedgjørende enn den hadde behøvd. Litt som når en Concord Cruiser kjører inn til en vanlig parkeringsplass.
Halvveis gjennom den første vinteren, har estetikken mistet noe av sin magi. På nært hold synes flere rustutslag og skjemmende flekker å prege fasaden på uventede steder. Noen plasser er de forsøkt malt og fikset, andre plasser ikke. Korrosjon og hvit betong er ikke subtilt, så hva har gått galt? Har det vært mangelfull kommunikasjon til de som utførte arbeidet at gjenghylsene brukt til løfting og bindetråder også skulle være syrefaste? Fasaden skulle ha vært perfekt.
Byggets formål er toalettvirksomhet. Men i tillegg finnes også en oppvarmet «varmestue» med utsikt. En kjærkommen gest for mange som ønsker seg litt le og varme. Akkurat her blir skillet mellom ute og inne tydeligere, som om naturen selv insisterer på å forsvare sin egen grense. Det er nok andre grunner enn utsikt som trekker deg inn til varmestuen, da det automatiske lyset som skrur seg på her inne gir såpass mye gjenskinn i glasset at man ser lite annet enn sitt eget speilbilde store deler av døgnet og året.
Til tross for en veldig praktisk og robust materialpallett, som tåler det meste av slitasje og bruk, sitter jeg igjen med et inntrykk av at varmestuen kunne fortjent litt mer omsorg.
Selve toalettrommene er i likhet med varmestuen helt fine – robuste, vedlikeholdsfrie materialer i betong og stål. Du får gjort det du skal, men opplever i liten grad noe mer utover det. Presisjonen og detaljene blant annet i himlingen – med de gjennomgående betongbjelkene – er riktignok vakre og det har selvsagt en verdi. Stålplaten som skjermer for innsyn på framsiden, vil gi en sjattering som bærer preg av de ramsalte omgivelsene bygget befinner seg i. Likevel må jeg spørre – har det vært en større kjærlighet og dedikasjon for konstruksjonen, på bekostning av den praktiske problemløsningen? Hvor kan jeg for eksempel henge ytterjakka mi? Hvorfor resulterer bevegelsesmønsteret til besøkende alltid i en liten dam mellom doen, krana og tørkepapiret? Og hvorfor finner jeg stadig innesperrede turister som må hjelpes ut, fordi døra til toalettet er for stram?
«Brunstranda 2.0» bærer preg av en utvilsomt god prosjekteringsjobb. Alle møter og overganger er nøye og presist tiltenkt. For eksempel ligger gitterristene i himlingene dønn parallelle og vitner om en totaldesign som få behersker. Bygget som helhet fremstår både crispy og appellerende – nøyaktige tegninger og mål, som søker en kirurgisk presisjon, kun avslørt på noen steder av skjønnheten i menneskelig innsats. Jo lengre spenn man jobber med, og jo mindre rommene er, desto mer avslørende blir alle forskyvninger og feil. I motsetning til å jobbe med for eksempel tre, er ikke glass og betong like tilbøyelig.
Kudos til arkitektene for å ha tegnet og løst alle disse utfordringene. Bygget består av mange tiltalende detaljer, med en tilsynelatende stram og presis bygningskropp.
Det jeg funderer over, er hvilke andre kvaliteter prosjektet tilfører?

Oppvarmet rom for rast, med utsikt mot havet.
Foto: Johan DehlinOppsummering
I mitt første møte med nybygget, lurte arkitekthjernen min på hvorfor de flotte bjelkene [les: hovedkonstruksjonen] var plassert så høyt oppe. Hvorfor de horisontalt ikke gikk i flukt med dørene, eller vertikalt i flukt med endeveggene. Hva var det som gjorde at de kraget akkurat litt ut på begge sidene, og ikke betraktelig mye lengre? Så langt, at de også gjorde området rundt seg til et rom, gikk i dialog med omgivelsene og gjorde stedet til sitt.
Underveis har jeg forstått at bjelkene måtte prefabrikkeres, da de skulle pigghamres for hånd inne på fabrikk under trygge omgivelser. De skjøre bjelkene måtte deretter transporteres med lastebil som dikterer makslengden på lasten de må frakte. Lastebilens begrensinger har lagt forutsetningene for hele prosjektet. Dersom tomten i seg selv, heller kunne ha vært premissgiver for arkitekturen og kalibrere den, hadde jeg stilt meg mindre kritisk til konseptet.
Det fantastiske med Nasjonale turistveger er at det gir rom for arkitektureksperimentering og utvikling. Men gjerne med måte og balanse. Det nye servicebygget er utvilsomt mer estetisk tiltalende enn forgjengeren. Det er flere raffinerte arkitektoniske detaljer og intensjoner enn den tidligere torvtak- og tømmerstokk-utgaven kunne tilby.
Men i jakten på å løse den perfekte kuldebroen og andre detaljer, har noe annet betydningsfullt gått tapt. Noe som verken handler om tektonikk, taktilitet eller teknologi, men heller om usynlige krefter forankret i mennesker, kultur og historie. Noe stedlig, som kan føles og som er knyttet til de delikate justeringene av plassen. Gjennom den lange byggeperioden, har prosjektet fordrevet det som en gang fantes her og forsøkt å starte med blanke ark. Selv om noen ting har gått tapt på veien, har folk begynt å finne frem igjen og gjenskape ting på nytt de også.
Kanskje behøver ikke en oppgradering være mer enn at tilreisende får en litt freshere do-opplevelse?
Alle de fine løsningene kommer først og fremst bygget til gode, ikke selve stedet. Slik gir den nye Brunstranda meg en følelse av en tapt mulighet, der arkitekturen kunne ha fått løst og tilført så mye mer.

01. 70mm Isolasjon/stålstender/membran
02. L-profil: 2mm rustfri. Boltes
03. Fuge mellom glass
04. 2mm rustfri stålplate
05. Betongdrager
06. 12mm våtromsplate
07. 70mm trykkfast isolasjon
08. 70mm isolerte TRIP-profiler
09. Hatteprofil: bukket syrefast stål H60xB208xL150mm
10. 200mm trykkfast isolasjon/dampsperre/takpapp
11. 50mm trykkfast isolasjon
12. 20mm gitterrist
13. L-profil: 60x30x3mm
14. Herdet laminert glass 2x4mm
Illustrasjon: Vatn Architecture og Jørgen Tandberg Arkitekt MNAL
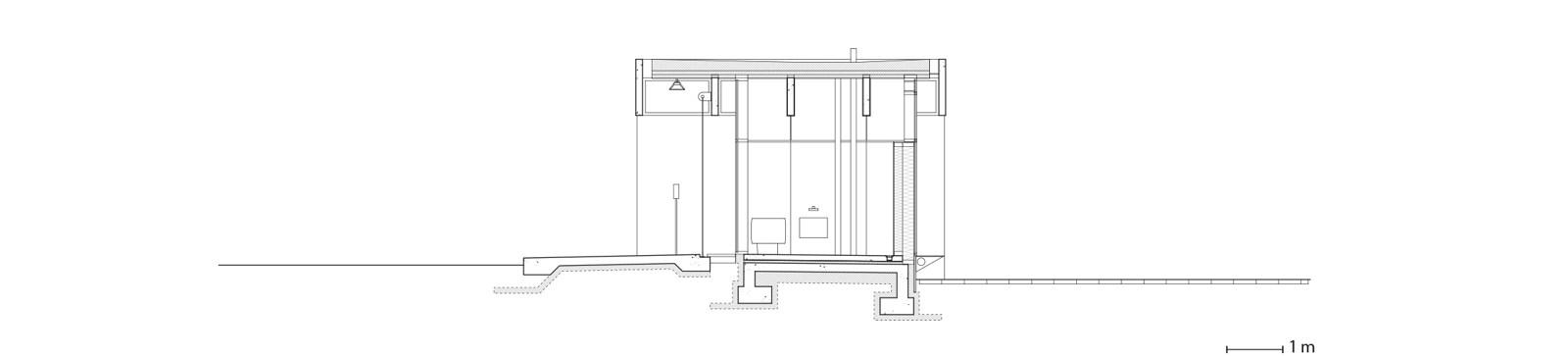
Tverrsnitt
Illustrasjon: Vatn Architecture og Jørgen Tandberg Arkitekt MNAL
Lengdesnitt
Illustrasjon: Vatn Architecture og Jørgen Tandberg Arkitekt MNAL
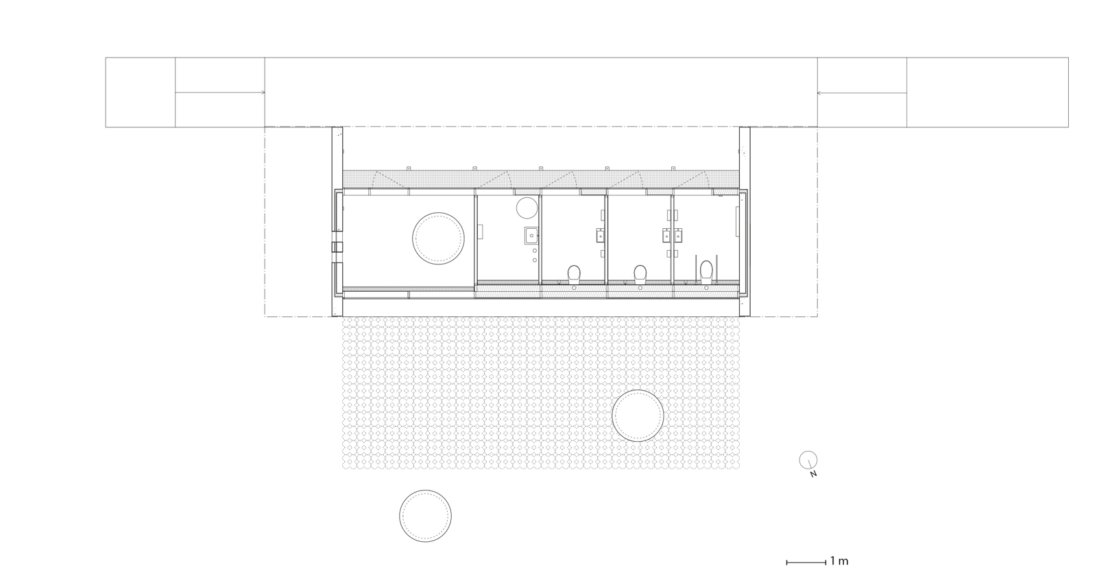
Plan
Illustrasjon: Vatn Architecture og Jørgen Tandberg Arkitekt MNAL